Ajánlói Link másolása
Isaszeg
kep Galéria
kep
kep
kep
kep
Feladva:2026-03-20 02:05
Profi hirdetés kiemelés előresorolással kiemelés 20+5 napig
Isaszeg
99 990 000 Ft
Isaszeg
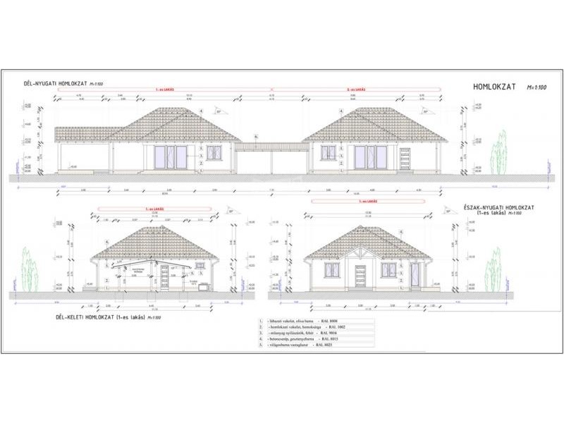
Isaszeg csendes, családi házas részén, a Jegenye utcába 11. szám alatt kínálunk megvételre egy új építésű, igényesen kivitelezett ikerházat. A beruházóval már több sikeres értékesítésben működtem együtt, számos referenciával rendelkezik, munkáját megbízható minőség és korrekt kivitelezés jellemzi. Az 1173 m²-es telken épülő ingatlanok a jobb használhatóság érdekében hátrébb kerültek elhelyezésre, így kényelmesebb, élhetőbb kertkapcsolat alakul ki. Az utcafronti lakáshoz 465 m², míg a hátsó lakáshoz 708 m² kizárólagos használatú telekrész tartozik. A hátsó ingatlan ára 105.000.000.- Ft. Az első lakáshoz egy 4,8 méteres előterasz tartozik, amely igény szerint módosítható. Az ikerház felek kizárólag a fedett gépkocsibeállóknál érintkeznek, így a lakóterek szeparációja gyakorlatilag egy önálló családi ház érzetét nyújtja. Az épület 30 cm-es Porotherm téglából készül, fa födémmel. A hőszigetelés 15 cm homlokzati EPS-ből, 10 cm lépésálló rétegből és 30 cm födémszigetelésből áll. A 7 légkamrás, háromrétegű üvegezésű nyílászárók kívül barna, belül fehér színben készülnek, elektromos alumínium redőnyökkel és szúnyoghálóval szerelve. A fűtésről és hűtésről egy 9 kW-os split hőszivattyús rendszer gondoskodik, teljes padlófűtéssel és fan-coil hűtéssel, így az ingatlan fenntartása korszerű és energiahatékony megoldásokra épül. A belső kialakítás a vevő igényei szerint alakítható: a szobákban laminált padló választható 5.000 Ft/m² értékhatárig, míg a nappaliban, vizes helyiségekben és közlekedőkben 8.000 Ft/m²-ig választható hidegburkolat. A beltéri ajtók bruttó 70.000 Ft/db értékig kerülnek beépítésre. Magasabb minőségű anyagok felára egyedi egyeztetés alapján lehetséges. A villamos hálózat 1 fázisú, nappali 32A és 1 fázisú H tarifa 32 A terhelhetőségű, bővített konnektor- és világítási pontokkal, minden szobában TV- és internet kiállással. Az ingatlan riasztórendszer előkészítéssel készül, egy kezelőegységgel, több mozgás- és nyitásérzékelővel, valamint kaputelefonnal. A kert durva tereprendezéssel, térkövezett járdával és autóbeállóval készül. Az utcafronton zsalukő alappal és oszlopokkal, fa lécezéssel készül a kerítés, a gyalogos- és gépkocsi kapu mechanikus zárral és elektromos kiállással. Az ingatlan ideális választás mindazok számára, akik új építésű, korszerű műszaki tartalmú otthont keresnek, jól átgondolt elrendezéssel és megbízható kivitelezői háttérrel. INGYENES hitel tanácsadás, CSOK Plusz és Otthon Start ügyintézés! BANKFÜGGETLEN hitelcentrumunk az összes elérhető bank és hitelintézet ajánlatát versenyezteti az Ön kedvéért, ráadásul DÍJMENTESEN. - Egyedi, bankfiókban nem elérhető kamat- és díjkedvezmények - Hitelképesség vizsgálat - Idő, energia és pénz megtakarítás - Teljes hivatali ügyintézés Amennyiben hirdetésem felkeltette az érdeklődését vagy egyéb információra van szüksége hívjon bizalommal!
Bruttó ár
99 990 000 Ft
Elérhetőségek
+36-... Megjelenítés
Weboldal link
0
Videó link
0
Cim
Magyarország
Pest megye
Isaszeg
Jegenye utca
Hirdetés leirása
Hirdetés azonosító:41552