Ajánlói Link másolása
Páli - 3 szoba nappalis ház eladó
kep Galéria
kep
kep
kep
kep
Feladva:2026-03-27 15:38
Páli
34 990 000 Ft
Páli - 3 szoba nappalis ház eladó
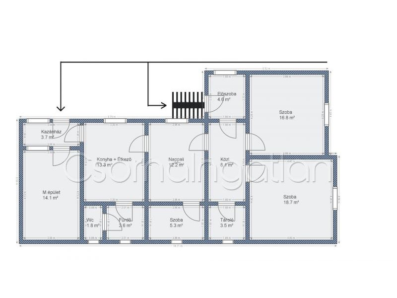
Páli – 3 szoba nappalis falusi csok-ra alkalmas ház eladó Páliban 90 m2-es összkomfortos családi ház 2600 m2-es telken eladó HELYISÉGEK: - 3 külön bejáratú szoba - nappali - konyha + étkező - fürdő - tároló MŰSZAKI JELLEMZŐK: - 1970-ben épült téglaház - magas beton alap - beton födém - új műanyag ablakok redőnnyel felszerelve - gáz-, és vegyes központi kazán - hűtő-fűtő klíma - meleg víz gázbojler által - éjszakai és nappali áram - 2 bejárat MELLÉKÉPÜLETEK: - tároló - kazánház - pajta - garázs TELEK: - 2600 m2-es - az udvar rész körbekerített - ásott kút FONTOS LEHET: - falusi CSOK-ra alkalmas - azonnal birtokba vehető - tehermentes PÁLI A kb. 420 fős település Beledtől 7 km-re fekszik, s ezáltal a M86-os gyorsforgalmi úttól is - a Rábától kb. 4 km-re helyezkedik el - óvoda - falusi CSOK a településen igényelhető
Bruttó ár
34 990 000 Ft
Elérhetőségek
+362... Megjelenítés
Weboldal link
Videó link
Cim
Magyarország
Győr-Moson-Sopron megye
Páli
Hirdetés jellege
Eladó
Ingatlan típusa
Kertes ház, családi ház
Mérete (területe) m²
Lakóépület vagy szoba vagy építmény területe m² : 90
Telek vagy föld területe m² : 2600
Ingatlan állapota
Jó állapotú
Fűtés típusa
Gáz központi fűtés vagy církó
Vegyes tüzelésű központi fűtés
Szobák száma
3
Ingatlan felszereltsége
Légkondicionáló vagy Klima
Összkomfortos
Emelet
Földszint
Ingatlan egyéb paraméterei
Saját garázs
Azonnal költözhető
Melléképület, gazdasági épület, tároló
Zöld övezeti, parkosított vagy kis kert
Közmű és energia ellátás (telek esetén javasolt)
Víz
Gáz
Csatorna
Villany
Ipari áram
Ásott vagy fúrott kút
Tulajdonjog/ bérleti jog
Tulajdonjog
Építmény falszerkezete
Tégla
Hirdető jogállása (magánszemély/cég)
Cég
Cégek ingatlan szolgáltatása, kereskedeleme
Ingatlan közvetítés
Hirdetés leirása
Hirdetés azonosító:41820