Ajánlói Link másolása
Kaposvár
kep Galéria
kep
kep
kep
kep
Feladva:2025-09-30 02:10
Profi hirdetés kiemelés előresorolással kiemelés 20+5 napig
Kaposvár
38 845 000 Ft
Kaposvár
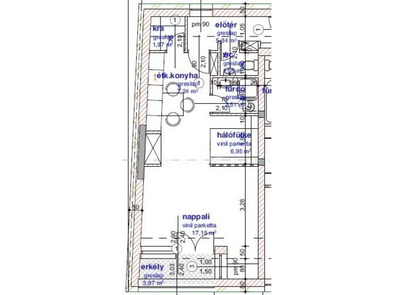
Befektetők, otthonkeresők figyelem, hiányt pótló építkezés Kaposvár belvárosában! Kaposváron megújuló környezetben, a Fő utca 91. szám alatt megvalósuló 15 lakásos társasház a mai kor igényeire és elvárásaira szabva a legkorszerűbb energetikával, kizárólag minőségi anyagok felhasználásával épül -megújuló energiaforrást is alkalmazva- egy hangulatos, fákkal borított telekterületen, kiváló elhelyezkedés mellett. A projekt 9.-es számú, második emeleti lakása nettó 44,65 m2 alapterületű. A jól átgondolt terveknek köszönhetően a lakás elosztása kiváló, az életterek kialakításánál a funkcionalitás dominált, kényelmes életteret biztosítva leendő lakóinak. A lakás a tervek alapján amerikai konyhás nappali, hálófülke, kamra, fürdőszoba, mellékhelyiség, és előtér térfelosztású. Az ingatlanhoz egy 3,87 m2-es erkély is tartozik. A lakások a burkolatok és beltéri nyílászárók szabad választása mellett kulcsrakész állapotban kerülnek átadásra. A társasház zárt, elektromos kapubeállóval ellátott udvarán kialakított felszíni beállóhely 2.500.000. Ft-ért, míg "garázs" és hozzá tartozó dupla méretű tároló helyiség 8.000.000.-Ft-ért vásárolható a lakásokhoz. A társasház méretes zöld udvarán lehetőség nyílik egy fantasztikus közösségi tér kialakítására is, úgy mint játszótér, kondipark, sütögető, pihenő liget. Az ingatlan beruházója és kivitelezője kimondottan megbízható, több évtizede az építőipari piacon tevékenykedő, kiváló referenciákkal bíró cég (nem pedig egy adott projekt kedvéért létrehozott gazdasági társaság), aki így az esetleges garanciális javításokért is jótáll. A lakások várható átadása kulcsrakész állapotban 2027. április 30. Az ingatlantól pár perces sétával érhetőek el boltok, közoktatási és köznevelési intézmények, a magával ragadó Vaszary (Okos) park, a kórház stb... Egyedülálló lehetőség Kaposvár belvárosában, remek elhelyezkedéssel, kiváló infrastruktúrával, mely befektetésként, és otthonteremtési célzattal is kitűnő választás! További információért kérem forduljon hozzám bizalommal!
Bruttó ár
38 845 000 Ft
Elérhetőségek
+36-... Megjelenítés
Weboldal link
0
Videó link
0
Cim
Magyarország
Somogy megye
Kaposvár
Hiánypótló építkezés a belvárosban
Hirdetés leirása
Hirdetés azonosító:37890