Ajánlói Link másolása
Taksony
kep Galéria
kep
kep
kep
kep
Feladva:2026-04-09 02:07
Profi hirdetés kiemelés előresorolással kiemelés 20+5 napig
Taksony
115 000 000 Ft
Taksony
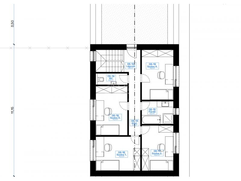
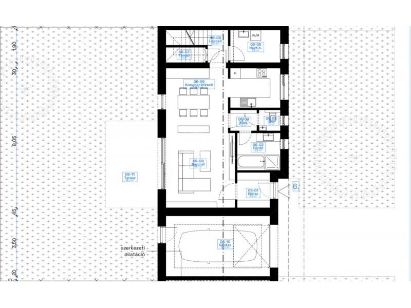
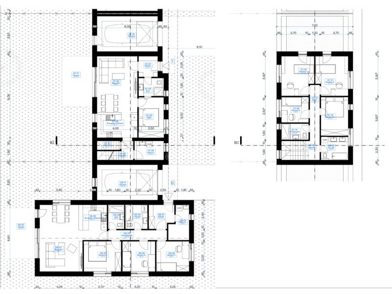
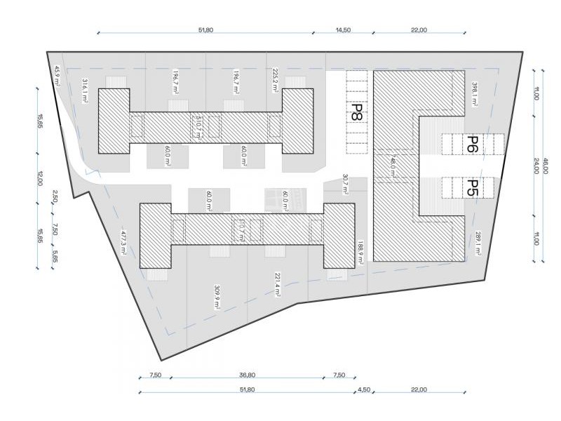
ECOLAND lakópark Taksonyban! Taksonyban 6265 nm-es területen egy modern 12 lakásos lakópark építése hamarosan megkezdődik, és ezzel együtt elindítjuk az előértékesítést! Amit kínálunk! -Prémium kivitelezés, -Korszerű, energiatakarékos lakások, -Átgondolt alaprajzok, kényelmes életterek, -Csendes, nyugodt környezet, -Földszinti lakások saját kertrésszel rendelkeznek, -Kiváló megközelíthetőség. Legyen ön az elsők között, akik kiválaszthatják álmaik otthonát a legjobb adottságú lakások közül! A lakások különböző méretűek, a belső terek még az ön izlése, igénye szerint alakíthatóak. A projektben különböző méretű üzlethelyiségek kialakítása is tervezett. A hirdetésben mellékelünk néhány alaprajzot. Épül - 4 db földszinti lakás garázzsal + terasszal + saját kertrésszel. nappali+étkező+konyha+3 szoba+ fürdőszoba-WC+ zuhanyzó- WC+ házt.h. a lakások alapterülete: nettó 115 nm + 15 nm terasz + saját kertrész kb. 316 nm. Ára: 115.000.000.-Ft - 4 db kétszintes lakás garázzsal + terasszal + saját kertrésszel. Akár kétgenerációssá alaktíható! a lakások alapterülete: nettó 146 nm + 15 nm terasz + saját kertrész kb. 200 nm. A garázs teteje monolit födém, járható, beépíthető! Ára: 146.000.000.-Ft - 3 db emeleti lakás loggiával. a lakások alapterülete: nettó 80 nm. Ára: 96.000.000.-Ft - 1 db 240 nm-es emeleti lakás. BEFEKTETŐKNEK! 3 teljesértékű lakássá alakítható (saját fűtés, víz, villany kialakítva, saját mérőórák). Ára: 240.000.000.-Ft Műszaki tartalom: - falazat Porotherm N+F 30 tégla, - vasbeton födém + 25 cm szigetelés, - külső szigetelés 15 cm polisztirol, - 3 rétegű műanyag nyílászárók, - elektromos alumínium redőny + szúnyogháló, - elektromos garázsajtó, - hőszivattyús fűtésrendszer, padlófűtés, - lakásonként 4 db Gree hűtő-fűtő klíma, - hideg burkolatok 7.000.-Ft/nm, - meleg burkolatok 6.000.-Ft/nm, - beltéri ajtók 80.000.- Ft/db, - szaniterek 800.000.-Ft-ig. - földszinti lakások saját telekrésze lekerítve, - elektromos autó töltési lehetőség. Várható átadás: 2027. évvége. A lakások 20 % önerővel leköthetők. Irodánk 30 éves szakmai tapasztalattal áll ügyfelei rendelkezésére! Amivel segítjük az Ön ingatlan vásárlását: - ingyenes hitelügyintézés (CSOK és Babaváró és egyéb hitel ügyintézése is) - jogi háttér, - földhivatali ügyintézés, - energetikai tanúsítvány ügyintézése, - a vevő számára ingyenes az ingatlanközvetítés. Várom szíves megkeresését!
Bruttó ár
115 000 000 Ft
Elérhetőségek
+36-... Megjelenítés
Weboldal link
0
Videó link
0
Cim
Magyarország
Pest megye
Taksony
ECOLAND LAKÓPARK
Hirdetés leirása
Hirdetés azonosító:42031