Szigetszentmiklós
SZIGETSZENTMIKLÓSON A SZENT MIKLÓS ÚTI LAKÓTELEPEN VILÁGOS, 62 M2 ALAPTERÜLETŰ, ERKÉLYES KLIMATIZÁLT MÁSODIK EMELETI LAKÁS ELADÓ!
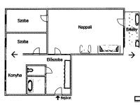
Szigetszentmiklóson a Szent Miklós utcában, egy négyszintes panel házban, eladóvá vált, egy második emeleti, napfényes kelet-nyugat tájolású, 62 m2 lakóterületű, jó beosztású, 1+ 2 fél szobás kényelmes lakás!
A társas-ház melyben a lakás elhelyezkedik rendezett, jó lakó közösségnek örvend!
A lakás nyílászárói műanyag szerkezetű thermo üvegezésűek, redőnnyel és szúnyoghálóval ellátottak..
Fűtése, távfűtés radiátor hőleadókkal, a nyári melegben a kellemes hőmérsékletről két inverteres hűtő/fűtő klíma gondoskodik.
Burkolatai a szobákban laminált parketta, konyhában és a fürdőszobában, közlekedőben kerámia lap burkolat.
Elosztása: közlekedő/előtér 5,61 m2, nappali szoba 26 m2, félszoba 8,51 m2, félszoba 8,51 m2 konyha/étkező 8,65 m2, fürdőszoba 3,51 m2, toalett 1 m2, erkély 3 m2
A beépített konyhabútor gépesítve, és a beépített bútorok a vételár részét képezik. A lakáshoz közös használatú tároló tartozik.
A közös költség 12,260 ft mely tartalmazza a felújítási alapot, a lépcsőház takarítást, szemétszállítást, biztosítást.
A nappali parkettázása folyamatban van.
Az ingatlan közelében, bevásárlási lehetőségek és intézmények közül szinte minden 2-3 perc távolságban megtalálható, a közért, pékség, hentes, zöldséges, étterem, iskola, óvoda, posta, bank, orvosi rendelő, HÉV megálló, stb.
Az agglomerációból könnyedén a fővárosba juthatunk, akár autóval (M0), akár tömegközlekedéssel (HÉV)
FINANSZÍROZÁS:
Nálunk mindent egy helyen intézhet:
- hivatalos ingatlanközvetítés;
- szakszerű jogi képviselet;
- profi CSOK-PLUSZ, és hitelügyintézés: 16 Bank, több mint 100 konstrukció;
VÁROM MEGTISZTELŐ HÍVÁSÁT!
A részletes adatvédelmi tájékoztató folyamatosan elérhető a GDN weboldalán.