Ajánlói Link másolása
Szigetszentmiklós
kep Galéria
kep
kep
kep
kep
Feladva:2025-10-31 02:12
Profi hirdetés kiemelés előresorolással kiemelés 20+5 napig
Szigetszentmiklós
58 500 000 Ft
Szigetszentmiklós
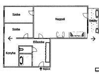
SZIGETSZENTMIKLÓSON A SZENT MIKLÓS ÚTI LAKÓTELEPEN VILÁGOS, 62 M2 ALAPTERÜLETŰ, ERKÉLYES KLIMATIZÁLT MÁSODIK EMELETI LAKÁS ELADÓ! Szigetszentmiklóson a Szent Miklós utcában, egy négyszintes panel házban, eladóvá vált, egy második emeleti, napfényes kelet-nyugat tájolású, 62 m2 lakóterületű, jó beosztású, 1+ 2 fél szobás kényelmes lakás! A társas-ház melyben a lakás elhelyezkedik rendezett, jó lakó közösségnek örvend! A lakás nyílászárói műanyag szerkezetű thermo üvegezésűek, redőnnyel és szúnyoghálóval ellátottak.. Fűtése, távfűtés radiátor hőleadókkal, a nyári melegben a kellemes hőmérsékletről két inverteres hűtő/fűtő klíma gondoskodik. Burkolatai a szobákban laminált parketta, konyhában és a fürdőszobában, közlekedőben kerámia lap burkolat. Elosztása: közlekedő/előtér 5,61 m2, nappali szoba 26 m2, félszoba 8,51 m2, félszoba 8,51 m2 konyha/étkező 8,65 m2, fürdőszoba 3,51 m2, toalett 1 m2, erkély 3 m2 A beépített konyhabútor gépesítve, és a beépített bútorok a vételár részét képezik. A lakáshoz közös használatú tároló tartozik. A közös költség 12,260 ft mely tartalmazza a felújítási alapot, a lépcsőház takarítást, szemétszállítást, biztosítást. A nappali parkettázása folyamatban van. Az ingatlan közelében, bevásárlási lehetőségek és intézmények közül szinte minden 2-3 perc távolságban megtalálható, a közért, pékség, hentes, zöldséges, étterem, iskola, óvoda, posta, bank, orvosi rendelő, HÉV megálló, stb. Az agglomerációból könnyedén a fővárosba juthatunk, akár autóval (M0), akár tömegközlekedéssel (HÉV) FINANSZÍROZÁS: Nálunk mindent egy helyen intézhet: - hivatalos ingatlanközvetítés; - szakszerű jogi képviselet; - profi CSOK-PLUSZ, és hitelügyintézés: 16 Bank, több mint 100 konstrukció; VÁROM MEGTISZTELŐ HÍVÁSÁT! A részletes adatvédelmi tájékoztató folyamatosan elérhető a GDN weboldalán.
Bruttó ár
58 500 000 Ft
Elérhetőségek
+36-... Megjelenítés
Weboldal link
0
Videó link
0
Cim
Magyarország
Pest megye
Szigetszentmiklós
Szent Miklós utca
Hirdetés leirása
Hirdetés azonosító:38616