Ajánlói Link másolása
Szigethalom
kep Galéria
kep
kep
kep
kep
Feladva:2025-11-05 02:21
Profi hirdetés kiemelés előresorolással kiemelés 20+5 napig
Szigethalom
81 990 000 Ft
Szigethalom
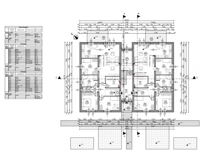
Szigethalom központi részén négy egységből álló "ikerház jellegű" " B" jelű földszinti hőszivattyús lakás kertkapcsolattal eladó! KIVÁLÓ KIVITELEZŐ, VERSENYKÉPES ÁRON, KIVÁLÓ OTTHONT AJÁNL ÖNNEK! CSOK +, H-TARIFA, HŐSZIVATTYÚ! A kertkapcsolatos otthon nettó 109,97 négyzetméteres, ehhez + terasz 11,25 m2 kapcsolódik valamint 300 nm saját használatú kert. Helyiségei: nappali 30,36 m2, szoba 12,25 m2, szoba 13,65 m2, szoba 13,65 m2, konyha 10,5 m2, fürdő szoba 8,75 m2, előtér 5,27 m2, háztartási helyiség 7,07 m2, wc 1,93 m2, folyosó 5,59 m2, közlekedő 1,4 m2, terasz 11,25 m2. A lakásokat zárt lépcsőházból érjük el, a földszinten két lakás, az emeleten két iroda kerül kialakításra. Az otthon beton alapra, 30-as síkra csiszolt tégla falazattal, monolit beton födémmel, beton cserép fedéssel épül meg. Az épület külső nyílászárói (ablakok) műanyag szerkezetűek 6 légkamrás 3 rétegű hőszigetelt üvegezéssel, elektromos redőnnyel, szerelve. A bejárati biztonsági ajtó több ponton záródó. A homlokzaton 12 cm GRAFITOS Dryvit rendszerű, a zárószinten födémben 20 cm kőzetgyapot, míg a padlóban 12 cm lépésálló nikecell szigetelés kerül beépítésre. Fűtése/ hűtése, meleg vízellátása hőszivattyúval (levegő) történik padlófűtéssel. A H tarifa kedvező üzemeltetési költséget biztosít. Burkolatok választhatóak 10,000 ft/nm felette a vevő kompenzál. Szaniterek keretösszegig választhatók. A kert alap kertrendezéssel kerül átadásra, viacolorozott autóbeállóval és személybejáróval. Műszaki tartalom ízelítő: -vasalt beton sávalap, -30 nf síkra csiszolt tégla falazat -tégla válaszfalak -monolit beton födém -nyílászárók 6 légkamrásak elektromos redőnnyel szereltek, szúnyoghálóval ellátottak, -tető beton cseréppel fedett -fűtés hőszivattyúval, padlófűtéses hőleadással -burkolatok 10.000ft/nm választhatóak -4 klíma lakásonként -H tarifa -lakásokhoz saját kert tartozik -minden közmű benn kivétel gáz, -homlokzaton 12 cm dryvit rendszerű szigetelés -padlón 12 cm lépésálló szigetelés A burkolatok, szaniterek választhatóak, a kivitelező igyekszik minden vásárlói igényt kielégíteni. A jelű földszinti lakás 300 m2 kert,109,97 m2 lakótér ára: 81.990.000 ft B jelű földszinti lakás 300 m2 kert,109,97 m2 lakótér ára: 81.990.000 ft C jelű emeleti iroda 7,12 m2 terasszal 103,67 m2 hasznos térrel: 76.200.000 ft D jelű emeleti iroda 7,12 m2 terasszal 103,67 m2 hasznos térrel: 76.200.000 ft Várható átadás 2026. május. Várom megtisztelő hívását! FINANSZÍROZÁS: Nálunk mindent egy helyen intézhet: - hivatalos ingatlanközvetítés; - szakszerű jogi képviselet; - profi CSOK-PLUSZ, és hitelügyintézés: 16 Bank, több mint 100 konstrukció; A részletes adatvédelmi tájékoztató folyamatosan elérhető a gdn ingatlan adatvédelmi oldalon.
Bruttó ár
81 990 000 Ft
Elérhetőségek
+36-... Megjelenítés
Weboldal link
0
Videó link
0
Cim
Magyarország
Pest megye
Szigethalom
Pest megye
Hirdetés leirása
Hirdetés azonosító:37702