Ajánlói Link másolása
Szada
kep Galéria
kep
kep
kep
kep
Feladva:2025-10-03 02:12
Profi hirdetés kiemelés előresorolással kiemelés 20+5 napig
Szada
39 999 000 Ft
Szada
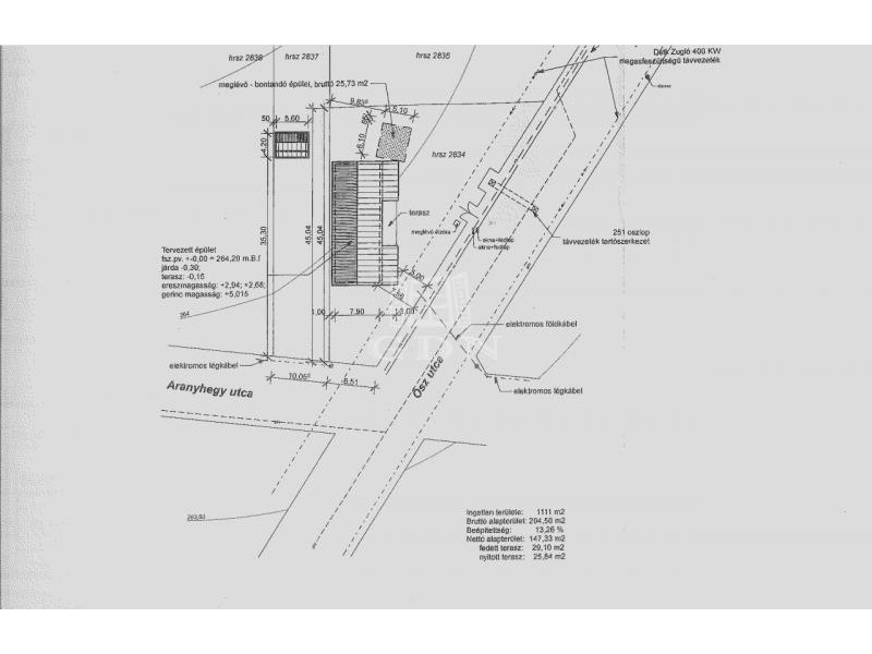
Megvételre kínálok Gödöllő kertvárosában, Szadán, 1111 nm-es telken, egy 40 nm-es könnyűszerkezetes házat. Az ingatlan 2 külön nyíló szobával, fürdőszobával, wc-vel, nappalival és konyhával rendelkezik. Közművek tekintetében víz, villany van a házban, 1 X32 Amper, a többi a telek előtt. Elhelyezkedés: Szada központjától csendes, kertvárosi környezetben, aszfaltozott utcában található. A település Budapesttől mindössze 30 km-re helyezkedik el, így ideális választás lehet azoknak, akik a főváros közelségét keresik, mégis nyugodt, zöldövezeti környezetben szeretnének élni. Infrastruktúra: A környéken jól kiépített közlekedési lehetőségek állnak rendelkezésre. A legközelebbi buszmegálló pár perces sétával elérhető, Gödöllő és az M3-as autópálya is könnyen megközelíthető. A településen óvoda, iskola, gyógyszertár és bevásárlási lehetőségek is megtalálhatók. 2006-ban készült építési engedélyezési terv, ami közel 150 nm-es ingatlan felépítését engedi. Amennyiben hirdetésem felkeltette érdeklődését, várom hívását a hét bármely napján! tp
Bruttó ár
39 999 000 Ft
Elérhetőségek
+36-... Megjelenítés
Weboldal link
0
Videó link
0
Cim
Magyarország
Pest megye
Szada
Ősz utca
Hirdetés leirása
Hirdetés azonosító:37384