Ajánlói Link másolása
Pécel
kep Galéria
kep
kep
kep
kep
Feladva:2025-11-11 02:15
Profi hirdetés kiemelés előresorolással kiemelés 20+5 napig
Pécel
95 000 000 Ft
Pécel
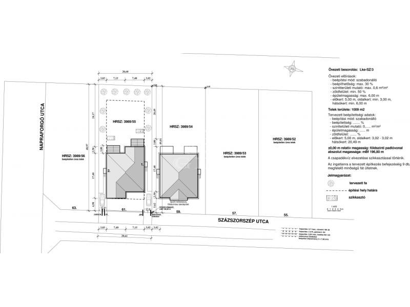
Pécelen a Százszorszép utca 61. szám alatt 1009m2-es telkeken, újonnan épülő nettó 99,66 m2 hasznos lakótérrel rendelkező, kulcsrakész ikerházfelek eladóak! A bal oldali ikerfél elkelt! Az ingatlanok 30-as Nútféderes tégla falazóelemből épülnek, fa födémmel. A tető héjazata antracit síkcserép lesz, a homlokzatok 15cm EPS, a padló 10cm lépésálló, a födém 25cm ásványgyapot szigeteléssel lesz ellátva. A külső nyílászárók 6 légkamrás háromrétegű üveggel szerelt műanyag thermók lesznek. A fűtést monoblockos hőszivattyús rendszer fogja ellátni, padlófűtéssel. A teraszok alatt tároló kerül kialakításra. Klíma előkészítés is készül. Műszaki tartalom: -Csempe, járólap 5000 ft/m² -Meleg burkolat 5000 Ft/m² -Fürdőkád vagy Zuhanyzó: 60.000.- Ft -Beltéri ajtók br. 50.000.- Ft. /db -Csaptelepek: 15.000.- Ft. /db Magasabb árú választás is lehetséges a különbség finanszírozásával. Elektromos kiépítés: -60db szerelvény /konnektor, kapcsoló, tv, internet/ -Kábeltévé: Előkészítés -Kapumozgató elektronika: előkészítés -Riasztó: előkészítés Az utcafronti kerítés színezett zsalukővel, fa lécezéssel készül. Tervezett átadás 2026 második negyedév. Érdeklődő ügyfeleinknek a tervdokumetációt és a műszaki tartalmat készséggel rendelkezésre bocsájtjuk. A kivitelező korábban számos ingatlant épített Isaszegen, Sülysápon, Dányban. Komoly érdeklődés esetén szívesen mutatunk referenciát! INGYENES hitel tanácsadás, CSOK Plusz és Otthon Start ügyintézés! BANKFÜGGETLEN hitelcentrumunk az összes elérhető bank és hitelintézet ajánlatát versenyezteti az Ön kedvéért, ráadásul DÍJMENTESEN. - Egyedi, bankfiókban nem elérhető kamat- és díjkedvezmények - Hitelképesség vizsgálat - Idő, energia és pénz megtakarítás - Teljes hivatali ügyintézés Amennyiben hirdetésem felkeltette az érdeklődését vagy egyéb információra van szüksége hívjon bizalommal!
Bruttó ár
95 000 000 Ft
Elérhetőségek
+36-... Megjelenítés
Weboldal link
0
Videó link
0
Cim
Magyarország
Pest megye
Pécel
Százszorszép utca
Hirdetés leirása
Hirdetés azonosító:38034