Ajánlói Link másolása
Pécel
kep Galéria
kep
kep
kep
kep
Feladva:2025-10-04 02:18
Profi hirdetés kiemelés előresorolással kiemelés 20+5 napig
Pécel
95 900 000 Ft
Pécel
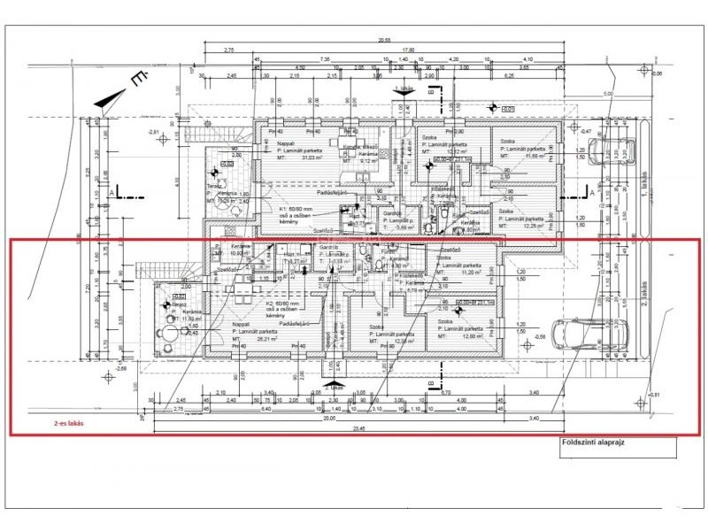
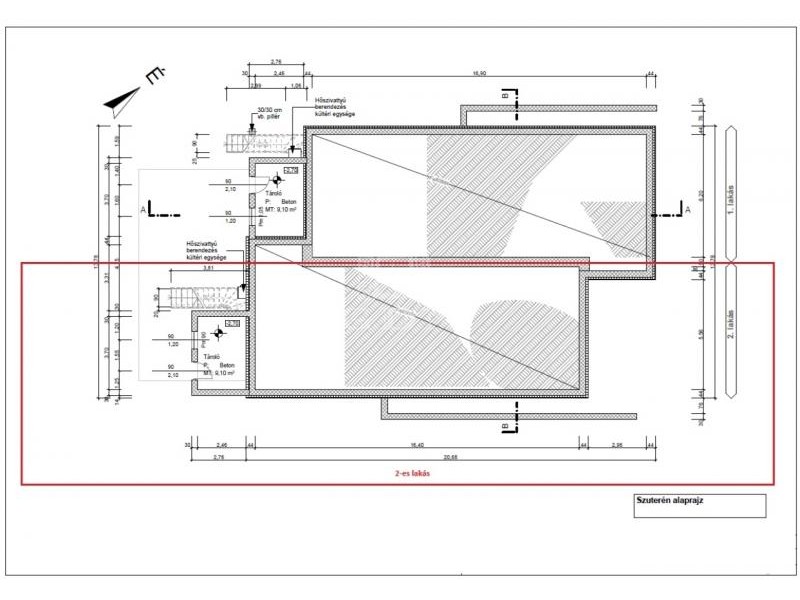
CSAK NÁLUNK! Pécel, kedvelt Levendulás lakóparkjában, eladó egy nettó 98,8 m², bruttó 107,81 m² alapterületű, 2 lakásos lakóépület 2-es lakása. A lakásokat, aszfaltos úton lehet megközelíteni. Az építkezés, várhatóan 2025 október közepén kezdődik. A 98,8 m²-es lakótérben 3 szoba + nappali biztosít kényelmes életteret a jövőbeli lakóknak. A házhoz tartozik egy ~508 m²-es saját kert, ami tökéletes helyszín családi és baráti összejövetelekhez. A 11,83 m²-es teraszról (alatta 9,01 m²-es tároló) gyönyörű kilátás nyílik a környező tájra. A lakások szimmetrikus belső elrendezéssel kerültek megtervezésre, földszintes kialakítással, illetve részleges szuterén beépítéssel. A lakások az oldalkerti homlokzatok közepén lévő bejáratokon közelíthetők meg. Rövid műszaki tartalom: - Az épület földszinti és emeleti külső határoló falai 30 cm vastag Porotherm 30 X-Therm falazó blokkból, úgynevezett klíma téglából készülnek. - A külső körítő falak külső oldalai 15 cm grafitos EPS (H 80) hab hőszigetelő vakolatot kapnak. - A tetőtér hőszigetelése, fújt hőszigetelő hab, kb. 45 cm vastag kőzetgyapotnak fele meg. - A válaszfalak 10 N+F Porotherm válaszfal lapokból falazott 10 cm vastag falszerkezetek. - A külső nyílászárók, fehér színben gyártott műanyag 3 rétegű, hőszigetelő üvegezéssel ellátottak (U= 0,9 W/m2K) ablakok lesznek. - A meleg víz ellátást és a fűtést gáz kondenzációs kazán biztosítja majd, padlófűtés hűleadással. Az alternatív fűtésről és hűtésről, KLÍMA fog gondoskodni. A tervezet áram kapacitás 3 x16 A lesz. Felár ellenében H-tarifás óra kérhető! Helységlista: - Földszint: - 4,48 m² belépő , - 5,78 m² közlekedő, - 12,38 m² szoba I., - 12,80 m² szoba II. , - 11,20 m² szoba III., - 4,80 m² fürdő, - 1,44 m² WC, - 3,68 m² gardrób, - 3,27 m² háztartási helység, - 26,21 m² nappali, - 10,92 m² konyha -étkező, - 1,84 m² kamra - ----------------- 98,8 m² Nyitott terasz 11,83 m² A terasz alatt szuterén tároló 9,01 m² lesz. A kert durva tereprendezéssel lesz átadva. Műszaki tartalom: -Hideg burkolat 6.000 Ft/m² -Meleg burkolat 5.000 Ft/m² -Szaniterek 200.000 Ft-ig -Beltéri ajtók 60.000 Ft, kilinccsel együtt /db Magasabb árú építőanyag választás esetén a különbözetet a Vevő finanszírozza. Az ár tartalmazza még: - H-tarifa óra előkészítését, az órát és a dobozt nem, - Kapumozgató elektronika előkészítését, - Riasztó előkészítését. A berendezések kiépítése opcionálisan, plusz pénzért megrendelhetők. A belső VÁLASZFALAK, MÉG MÓDOSÍTHATÓK! A Kivitelező a műszaki tartalom változtatás jogát fenntartja, az előírt energetikai előírások figyelembe vételével. A Cég számos referenciával rendelkezik. Komoly érdeklődés esetén szívesen mutatunk referenciát! Ne hagyja ki ezt a lehetőséget, legyen Ön az új ikerház tulajdonosa Pécelen! Finanszírozás 10 + 10 % önerő. Várható átadás: 2026 III. -IV. né. JÖJJÖN el, NÉZZE meg, SZERESSEN bele! A GV HitelCentrum, KÖTELEZETTSÉG MENTESEN és DÍJMENTESEN, versenyezteti Önért a bankok hitelajánlatait. Ismerje meg a vissza nem térítendő állami támogatásokat! * Egyedi, bankfiókban nem elérhető kamat- és díjkedvezmények. * Ingyenes Hitelképesség vizsgálat. * Idő, energia és pénz megtakarítás. * Teljes hivatali ügyintézés. * Babaváró. * CSOK+ * Hitel. * Megtakarítás, * és EGYÉB BANKI tranzakcióban segítségére lehetünk! • Igény esetén, ÜGYVÉDI segítséget nyújtunk, MEGFIZETHETŐ áron! Ha az ingatlannal kapcsolatban bővebb felvilágosításra lenne szüksége, hívjon bizalommal, állok rendelkezésére! F.M.
Bruttó ár
95 900 000 Ft
Elérhetőségek
+36-... Megjelenítés
Weboldal link
0
Videó link
0
Cim
Magyarország
Pest megye
Pécel
Pécel, új építésű ikerfél -2 lakás
Hirdetés leirása
Hirdetés azonosító:36282