Profi hirdetés kiemelés előresorolással kiemelés 20+5 napig
Nagykőrös
31 500 000 Ft
Nagykőrös
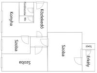
Eladásra kínálunk egy 62 nm, jó állapotú lakást Nagykőrös csendes részén. A panel lakás a 3. emeleten helyezkedik el, élhető térrel és 4 nm erkéllyel. Két teljes értékű plusz egy félszobával rendelkezik, melyek tökéletesek lehetnek családi pihenésre vagy akár otthoni munkavégzésre is. A távfűtés egyedi mérője lehetővé teszi a fűtési költségek pontos szabályozását. Az utcai kilátást nyújtó ablakok kellemes fényviszonyokat biztosítanak egész nap. Ne hagyja ki ezt a remek lehetőséget, tekintse meg ezt a tágas és kényelmes otthont Nagykőrösön!
A hirdető nem rendelkezik saját hirdetési aloldallal.