Ajánlói Link másolása
Mogyoród
kep Galéria
kep
kep
kep
kep
Feladva:2026-03-05 02:05
Profi hirdetés kiemelés előresorolással kiemelés 20+5 napig
Mogyoród
158 000 000 Ft
Mogyoród
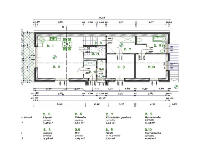
Mogyoród természetközeli, panorámás részén, új parcellázású környezetben, 764 m2-es telken elhelyezkedő, 2019-ben épült, körbejárható, 16 cm vastagságban szigetelt, kifogástalan állapotú, amerikai konyhás nappalis + 3 különnyíló szobás, dupla komfortos, rendkívül alacsony fenntartású, klimatizált, összkomfortos szuterén lakással rendelkező családi házat kínálok eladásra. Az ingatlan gépészete a költséghatékonyság jegyében került kialakításra, aminek keretében vezérelt ( alacsonyabb energiaárú) áramról működtetett, helyiségenként termosztatikus padlófűtés és villanybojler került kialakításra. A méretes, melléképületekkel rendelkező kertben, a locsolás házi vízműről megoldott. Az ingatlan megtekinthető a hét bármely napján! Várom a hívását, akár hétvégén is! B.Cs.
Bruttó ár
158 000 000 Ft
Elérhetőségek
+36-... Megjelenítés
Weboldal link
0
Videó link
0
Cim
Magyarország
Pest megye
Mogyoród
panorámás környezetben
Hirdetés leirása
Hirdetés azonosító:41218