Ajánlói Link másolása
Mogyoród
kep Galéria
kep
kep
kep
kep
Feladva:2025-12-10 02:16
Profi hirdetés kiemelés előresorolással kiemelés 20+5 napig
Mogyoród
82 000 000 Ft
Mogyoród
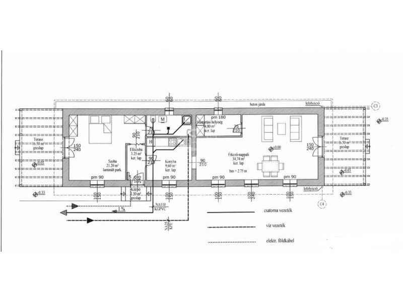
KÜLÖNLEGES LEHETŐSÉG MOGYORÓDON ! ! ! ÖNÁLLÓ CSALÁDI HÁZ 2 TERASSZAL ! ! ! 78,39 nm (EGY SZINTEN!) + 2(!) x 16,5 nm terasz kb. 370 nm-es telekrész. A 2 TERASZ KÜLÖNLEGES ÉLETÉRZÉST BIZTOSÍT, HISZEN EGYIK KELETI, MÁSIK NYUGATI FEKVÉSŰ! A reggeli napsugaraknál kávézhatunk és az esti lenyugvó nap fényénél akár borozhatunk is. Eredeti tervek szerint is kérhető, de kérhető plusz 1 szobával, tehát 2 vagy 3 szobásként is, vagy beépített tetőtérrel! /Természetesen ez plusz költség/ Alapból fa födém, de kérhető vasbeton födémmel is (plusz költség). A kivitelező több referánciával is rendelkezik, korábbi munkái, akár félkész, akár kulcsrakész állapotban megtekinthetőek. KIVÁLÓ LÓKÁCIÓ: - Autópálya felhajtó pár percre! - Buszmegálló gyalog pár percre! - HÉV megálló gyalog pár percre található! HÍVJON A RÉSZLETEKÉRT, NE MARADJON LE RÓLA! Tervezett átadás: 2026. június. NEM A KIVITELEZŐTŐL FÜGG, Ő 6 HÓNAP ALATT MEGÉPÍTI! A napelem illusztráció, feláras. U.I.: A képek ugyanazon beruházó által készített hasonló ingatlanban készültek! Az alaprajz a valóságnak 100%-ban megfelelő.
Bruttó ár
82 000 000 Ft
Elérhetőségek
+36-... Megjelenítés
Weboldal link
0
Videó link
0
Cim
Magyarország
Pest megye
Mogyoród
Szadai út
Hirdetés leirása
Hirdetés azonosító:37475