Ajánlói Link másolása
Mende
kep Galéria
kep
kep
kep
kep
Feladva:2026-04-24 02:13
Profi hirdetés kiemelés előresorolással kiemelés 20+5 napig
Mende
119 900 000 Ft
Mende
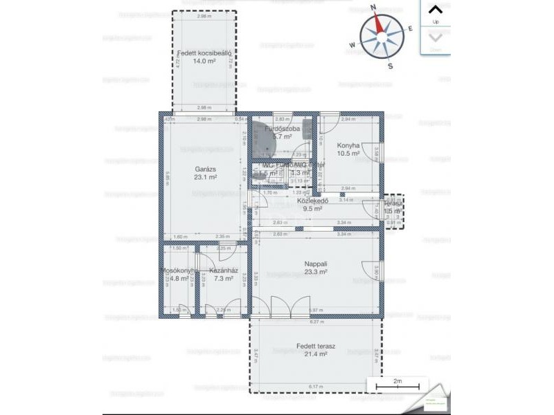
Eladó egy önálló 2 szintes, 139 m, 4 szobás családi ház Mende, Pusztaszentistván legszebb részén, lenyűgöző zöldövezetben, csendes utcában. Az épület a 90-es években beton alapra, tégla falazattal épült, külső szigeteléssel ellátott, betoncserép tetőzettel rendelkezik (139 nm) + 22 terasz. A parkosított kertben (885 nm) medence, a kert végében kutya kennel, tárolók és baromfi tartásra kialakított alkalmas udvarrész is található a málna, eper és veteményes kert mellett. Az előkertben egy fedett autóbeálló valamint még egy gépkocsi beálló is található. Az ingatlanba lépve az egy légtérben található közlekedő, konyha-étkező, nappali részre érkezünk. Innen nyílik egy sarokkádas fürdőszoba, egy mellékhelyiség, a lépcsőház az emeletre, illetve a házban lévő fűtött garázs felőli bejárat. A nagyméretű műanyag ablakoknak köszönhetően az egész élettér világos és barátságos. A nappaliból egy fedett terasz biztosítja a kertkapcsolatot. Az emeleti szinten két félszoba, egy fürdő w.c.-vel, valamint egy erkélyes hálószoba kapott helyet, kilátással a Gödöllői dombságra. A garázson keresztül érhető el a mosókonyha és kazánház ahonnan szintén kiléphetünk a kertbe, valamint a nagyméretű spájz is. Az épület fűtését radiátoron keresztül gázkazán, elektromos kazán biztosítja, valamint a nappaliban található gázkandalló. Az ár tartalmazza a teljes, igényes belső berendezést valamint a kerthez tartozó összes berendezést!!! Mende település a 31-es főút mentén található az agglomerációban, Budapest határától 15 km-re a központtól 35 km-re. Csendes, barátságos kisváros 4250 fős lélekszámmal. Megközelíthető elővárosi vasúttal (Kelti pu) és busszal (Stadion busz pu) is. Településen belül helyi járat üzemel. Közelben bölcsőde, óvoda található. Ez az a hely, ahol az őzek, nyulak, fácánok napi vendégek ahol a csend és nyugalom nem csak egy hangzatos szólam. Amennyiben valódi nyugalomra vágyik itt megtalálja. Megtekintés időpont egyeztetéssel!
Bruttó ár
119 900 000 Ft
Elérhetőségek
+36-... Megjelenítés
Weboldal link
0
Videó link
0
Cim
Magyarország
Pest megye
Mende
Pusztaszentistván
Hirdetés leirása
Hirdetés azonosító:41502