Ajánlói Link másolása
Maglód
kep Galéria
kep
kep
kep
kep
Feladva:2026-04-24 02:03
Profi hirdetés kiemelés előresorolással kiemelés 20+5 napig
Maglód
99 500 000 Ft
Maglód
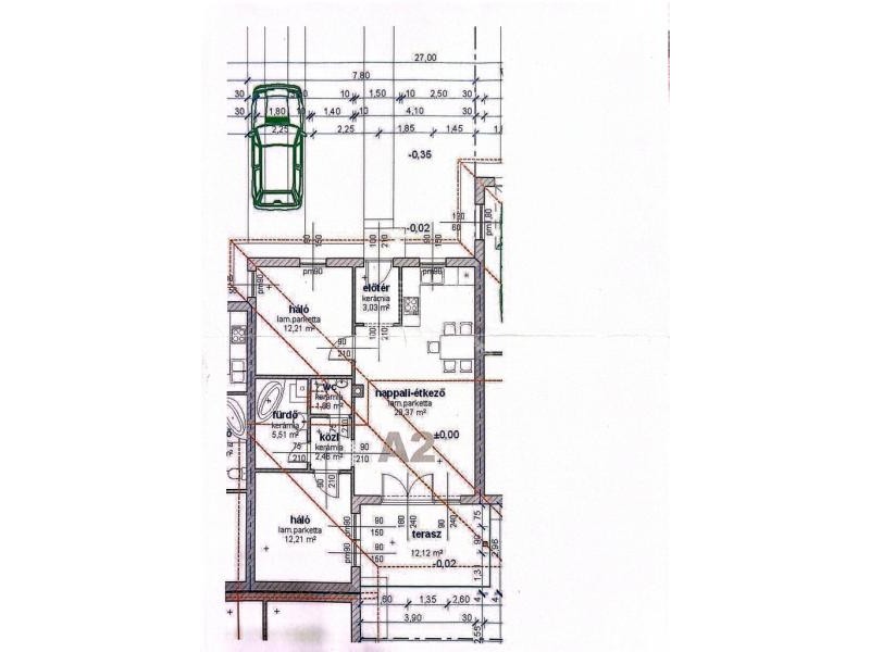
Kertkapcsolatos, igényes sorházi otthon Maglód kedvelt részén – ideális első lakásként is! Maglód csendes, folyamatosan fejlődő részén kínálunk megvételre egy kiváló állapotú, kertkapcsolatos sorházi lakást, amely tökéletes választás lehet azok számára, akik első otthonukat keresik, de nem szeretnének kompromisszumot kötni a minőség és a komfort terén. A 76 m²-es ingatlan átgondolt elrendezésének köszönhetően nappali + 2 külön nyíló szobával rendelkezik. A tágas, világos nappali a lakás központi tere, amely harmonikusan kapcsolódik a teraszhoz és a kerthez, így a belső és külső terek egysége valódi otthonélményt biztosít. A lakás jó műszaki és esztétikai állapotú, gáz cirkó fűtéssel és korszerű műanyag nyílászárókkal felszerelt, ami hosszú távon is kiszámítható fenntartást tesz lehetővé. A 12 m²-es terasz ideális helyszíne a nyugodt reggeleknek vagy az esti kikapcsolódásnak, míg a hozzá tartozó, kb. 100 m²-es privát kert tökéletes teret kínál pihenésre, kertészkedésre vagy akár baráti összejövetelekre. Az ingatlanhoz saját gépkocsi beálló is tartozik, telken belül. Elhelyezkedés és környezet: A környék infrastruktúrája kiváló: a mindennapi élethez szükséges szolgáltatások – üzletek, oktatási intézmények, egészségügyi ellátás – könnyen és gyorsan elérhetők. Budapest központja autóval és tömegközlekedéssel is jól megközelíthető, így ideális választás azok számára, akik a nyugodt otthoni környezetet a városi elérhetőséggel szeretnék ötvözni. Ez az ingatlan kiváló lehetőség mindazok számára, akik első otthonukat keresik egy élhető, nyugodt környezetben, ugyanakkor értékelik a minőségi kialakítást és a kertkapcsolat nyújtotta pluszt. A TEHERMENTES ingatlan előre egyeztetett időpontban, kizárólag ingatlanközvetítővel megtekinthető. tp
Bruttó ár
99 500 000 Ft
Elérhetőségek
+36-... Megjelenítés
Weboldal link
0
Videó link
0
Cim
Magyarország
Pest megye
Maglód
Beregszász utca
Hirdetés leirása
Hirdetés azonosító:42394