Ajánlói Link másolása
Kóka
kep Galéria
kep
kep
kep
kep
Feladva:2026-05-05 02:55
Profi hirdetés kiemelés előresorolással kiemelés 20+5 napig
Kóka
60 900 000 Ft
Kóka
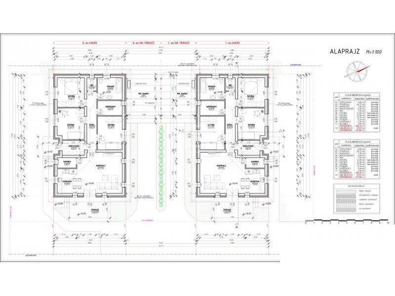
Eladó új építésű, energiahatékony ikerházfelek Kókán! Kóka, Felsővásártér 61/A szám alatt, egy 1306 m²-es telken kínálunk eladásra két, nettó 102,24 m²-es családi házat, amerikai konyhás nappalival és három külön nyíló szobával. A két ingatlan kizárólag a fedett autóbeállón keresztül érintkezik egymással. Az első házhoz 470 m²-es, míg a hátsó házhoz egy 560 m²-es, kizárólagos használatú, lekerített telekrész tartozik. Műszaki tartalom: -Porotherm P30N+F téglából épült teherhordó falak -Betonkoszorú, fa födémes tetőszerkezet -10 cm-es lépésálló polisztirol lábazati szigetelés -10 cm-es Austrotherm Grafitos homlokzati hőszigetelés -25 cm ásványgyapot szigetelés a vízszintes födémen -3 rétegű, 6 légkamrás műanyag thermo nyílászárók Fűtés és energetika: A ház fűtését modern, levegő-víz hőszivattyús rendszer biztosítja, mely a kiváló szigetelésnek köszönhetően rendkívül alacsony energiafelhasználást garantál. Burkolatok, szaniterek, ajtók – választhatóak az alábbi keretösszegekig: -Hidegburkolat: 3.000 Ft/m² -Melegburkolat: 3.000 Ft/m² -Beltéri ajtók: 30.000 Ft/db -Fürdőkád: 40.000 Ft -Csaptelep: 15.000 Ft/db Magasabb árkategóriájú termékek választása esetén a különbözet önállóan finanszírozható. Finanszírozás: CSOK Plusz és Otthon Start támogatás elérhető! Ingyenes hiteltanácsadás és CSOK Plusz ügyintézés Bankfüggetlen hitelcentrumunk versenyezteti a bankokat az Ön érdekében Egyedi, csak rajtunk keresztül elérhető kamat- és díjkedvezmények Teljes körű ügyintézés – időt, pénzt és energiát spórolunk Önnek! Tervezett átadás: 2026 második negyedéve Tervdokumentációt és részletes műszaki leírást érdeklődő ügyfeleink számára készséggel biztosítunk. Ha felkeltette érdeklődését az ajánlat, hívjon bizalommal!
Bruttó ár
60 900 000 Ft
Elérhetőségek
+36-... Megjelenítés
Weboldal link
0
Videó link
0
Cim
Magyarország
Pest megye
Kóka
Felsővásár Tér
Hirdetés leirása
Hirdetés azonosító:36527