Ajánlói Link másolása
Isaszeg
kep Galéria
kep
kep
kep
kep
Feladva:2025-11-11 02:03
Profi hirdetés kiemelés előresorolással kiemelés 20+5 napig
Isaszeg
90 000 000 Ft
Isaszeg
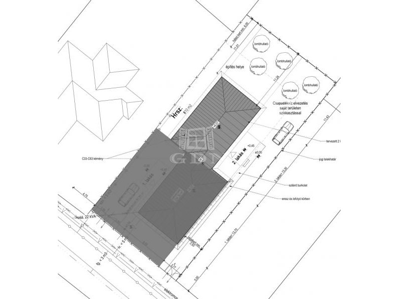
Isaszegen eladó energiahatékony ikerház fél, közel nulla rezsivel! Isaszeg egyik legcsendesebb zsákutcájában, a Szent Erzsébet utcában, új építésű házak között, eladó egy nettó 95 m²-es, három szoba + amerikai konyhás nappalis ikerházfél 28 m² terasszal, 527 m²-es, kizárólagos használatú telekrésszel. Az ingatlan 2021-ben épült, A energetikai besorolású, modern, energiahatékony otthon, amely minimális fenntartási költséggel működtethető. A ház egy 810 m²-es telekre épült, a társasházi alapító okirat révén a két lakóegység külön helyrajzi számon szerepel. Az eladásra kínált hátsó lakrész teljesen elszeparált, így a nyugalom és a privát tér garantált. A tartószerkezeti falak Porotherm P30 N+F téglából épültek, grafitos hőszigeteléssel. A háromrétegű üvegezésű nyílászárók alumínium szigetelt redőnnyel és szúnyoghálóval felszereltek. A fűtés és a melegvíz előállítása több forrásból is biztosított: a 10 kW-os napelemes rendszer (még 7 évig szaldós elszámolással) teljesen fedezi a villamosenergia-igényt az elektromos kazánnal és a villanybojlerrel, míg a kondenzációs gázkazán önállóan is használható, a fűtés és a melegvíz ellátására, havi kevesebb mint 10.000.-Ft gázfogyasztással és felhasználható az évi közel 10 MWh energiatermelés akár elektromos autó töltésére is. A padlófűtés, az igényes hideg- és melegburkolatok, valamint a gépesített, mosogatógéppel és páraelszívóval felszerelt konyha a mindennapi kényelmet szolgálják. A fürdőszobában kád és zuhanyzó is helyet kapott, továbbá külön mellékhelyiség is kialakításra került. Az ikerházakat elválasztó fal hangszigeteléssel épült. A 35 m²-es garázs két autó kényelmes tárolására alkalmas, a térkövezett kocsibeálló, valamint az öntözőrendszerrel ellátott kert tovább növeli a komfortérzetet. Riasztórendszer és elektromos kapu beszerelésére az előkészítés már ki lett alakítva. INGYENES hitel tanácsadás, CSOK Plusz ügyintézés! BANKFÜGGETLEN hitelcentrumunk az összes elérhető bank és hitelintézet ajánlatát versenyezteti az Ön kedvéért, ráadásul DÍJMENTESEN. - Egyedi, bankfiókban nem elérhető kamat- és díjkedvezmények - Hitelképesség vizsgálat - Idő, energia és pénz megtakarítás - Teljes hivatali ügyintézés Amennyiben hirdetésem felkeltette az érdeklődését vagy egyéb információra van szüksége hívjon bizalommal!
Bruttó ár
90 000 000 Ft
Elérhetőségek
+36-... Megjelenítés
Weboldal link
0
Videó link
0
Cim
Magyarország
Pest megye
Isaszeg
Szent Erzsébet utca
Hirdetés leirása
Hirdetés azonosító:38876