Ajánlói Link másolása
Gyál
kep Galéria
kep
kep
kep
kep
Feladva:2026-03-11 02:06
Profi hirdetés kiemelés előresorolással kiemelés 20+5 napig
Gyál
54 900 000 Ft
Gyál
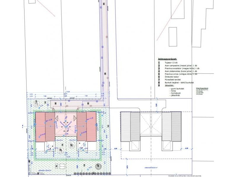
REMEK LEHETŐSÉG GYÁLON, CSAK NÁLUNK, ÜRES ÉPÍTÉSI TELKEK! Gyálon az Egressy út - Venyige köz környezetében, eladásra kínálunk 2 db. egymás mellett lévő építési telket egyben, vagy külön-külön is. Igény szerint komplett engedélyeztetett tervekkel 2 db. ikerház megépítésére, összesen 4 db. lakásra! A víz csatorna bevezetés folyamatban és az elektromos órafogadó kiépítés szintén folyamatban + az EON hálózatfejlesztési hozzájárulás is benne van az árban! Az áramot elviekben 2027. májusában hozzák, erről írásos EON papírja is van a tulajdonosnak. A telkek megközelíthetősége egy saját-privát nyeles részen lehetséges, amely 6 méter széles. TELEKRE ÉS AZ ÉPÜLETRE VONATKOZÓ ADATOK: Építési övezet: Lke-1 TELEK TERÜLETE: 1019,00 m2 Beépíthető telek terület: 890,00 m2 Telek nyélterülete: 129,00 m2 Tervezett lakóépület beépített alapterülete: 264,67 m2 Beépítési százalék: 264,67/890,00=0,297382 - 29,74%< 30,00 % ÉPÍTMÉNYMAGASSÁG : Tervezett lakóépület építménymagassága: 4,58 m < 5,00 m SZINTERÜLETI MUTATÓ: Tervezett lakóépület szintterülete (264,67+159,52): 424,19 m2 Szinterületi mutató: 424,19 m2/1019,00m2= 0,4162 50% A telkek eladási ára darabonként: 54,9 MFt./db. Információk szerint, az Egressy út teljes felújítása-kiszélesítése-átépítése 2028-ban várható. Az ingatlan részletes ismertetése és bemutatása előre egyeztetett időpontban lehetséges, melyet nagyon rugalmasan kezelünk, akár HÉTVÉGÉN is. További kérdéseivel kapcsolatban várom a jelentkezését. Amennyiben Önnek a vásárláshoz szüksége lenne hitelre, babaváró kölcsönre, lakástakarékra, stb., kezdeményezheti a kapcsolatfelvételt bankfüggetlen hitelügyintézőinkkel, teljesen DÍJMENTESEN. Közel 25 év szakmai tapasztalattal rendelkezem, eladó vagy kiadó ingatlana értékesítése vagy bérbeadása esetén, készséggel állok az Ön rendelkezésére is, keressen bizalommal.
Bruttó ár
54 900 000 Ft
Elérhetőségek
+36-... Megjelenítés
Weboldal link
0
Videó link
0
Cim
Magyarország
Pest megye
Gyál
Egressy út
Hirdetés leirása
Hirdetés azonosító:41314