Vissza a listára Ajánlói Link másolása
Fót
kep Galéria
kep
kep
kep
kep
Feladva:2026-02-01 02:05
Profi hirdetés kiemelés előresorolással kiemelés 20+5 napig
Fót
149 000 000 Ft
Fót
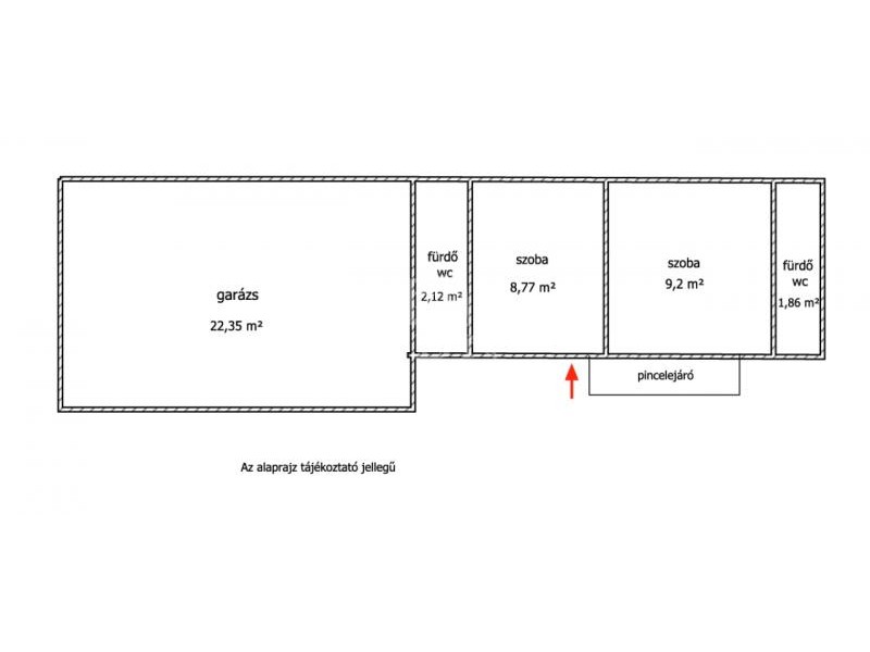
Eladásra kínáló Fóton egy felújított, kétgenerációs családiházat, amellyel egy udvarba kialakításra került egy külön kisebb házban 2 külön szoba, fürdőszobával. Ezen túl saját garázs és egy feszített víztükrös medence is az ár része. A gondozott nagy méretű kertben levő kerti búbos kemence, és a sütögető kiváló helyszíne a kikapcsolódásnak. A nagyobbik ház téglábl épült, erősített fafödém, cserép tető, és 10 cm vastag dryvit szigetelés jellemzi (amely lehetőséget biztosít a jó szellőzésre a falaknak). A kisebbik 2 szobás épület szintén tégla szerkezetű, falai gyapotszigetelést, és gipszkarton fedést kaptak belülről, kívülről pedig 12 cm dryvitszigetelést. Szintén cserépfedéssel bír. A fűtés mind két épületben gázüzemű. A nagyházban radiátoros (emeleten, és termosztátokkal kiegészítve), és gázkonvektoros hőleadással, ezen túl pedig egy cserépkályha is rendelkezsére áll, amely mind a konyhát, előteret, és a 2 szobát befűti, elhelyezkedéséből adódóan. A kisházban radiátoros hőleadók vannak felszerelve, és külön gázcirkó biztosítja az ellátást. Hűtő-fűtő klíma a nagyház nappalijában található extra felszereltségként. További extra a kültéri infrás érzékelő a garázsnál, és a bejárati ajtónál, amely a biztonságot is szolgálja. 4k akmerarendszer, távfelügyeletre kötött riasztóval kombinált. A kertben automata öntözőrendszer található, amely a 9000 literes esővízgyűjtő pufferből, és tartalékként a gyűrűskútból veszi a vizet. Hívjon bizalommal, tekintsük meg együtt!
Bruttó ár
149 000 000 Ft
Elérhetőségek
+36-... Megjelenítés
Weboldal link
0
Videó link
0
Cim
Magyarország
Pest megye
Fót
Madách Imre utca
Hirdetés leirása
Hirdetés azonosító:40144