Dunakeszi
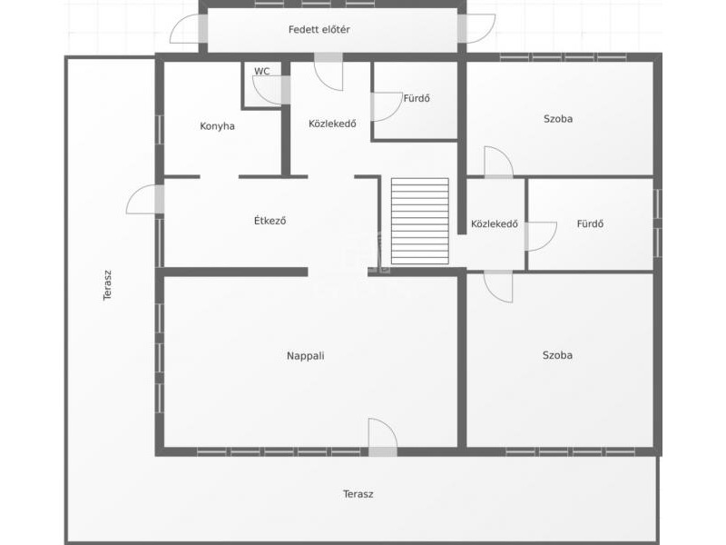
Dunakeszin kínálunk eladásra egy igényesen kivitelezett, szigetelt, dupla komfortos, önálló családi házat, különálló garázzsal, 600 nm-es telken. A földszinten minőségi, gépesített konyha, nappali, két szoba, két fürdőszoba, az emeleten egy nappali és két hálószoba kapott helyet. Egyedi kialakításának köszönhetően, élhető, tágas terek jellemzik, két generáció kényelmes együttélését is biztosítani tudja. A szobákban elhelyezett 4 db hűtő-fűtő klíma, a szuterén szinten háztartási helyiség, egy közösségi tér, tároló és egy finn szauna növelik a komfortot. A ház körül 40 nm-es hangulatos terasz található, a füvesített kerthez automata öntözőrendszer tartozik. Az energiahatékonyságról 5 kw-os napelem rendszer gondoskodik. Ajánlom azoknak akik vágynak egy minden igényt kielégítő, tökéletes otthonra, csendes, szép környezetben és fontos szempont számukra a jó infrastruktúra.