Dunaharaszti
Eladó 3 szobás önálló családi ház Dunaharasztiban.
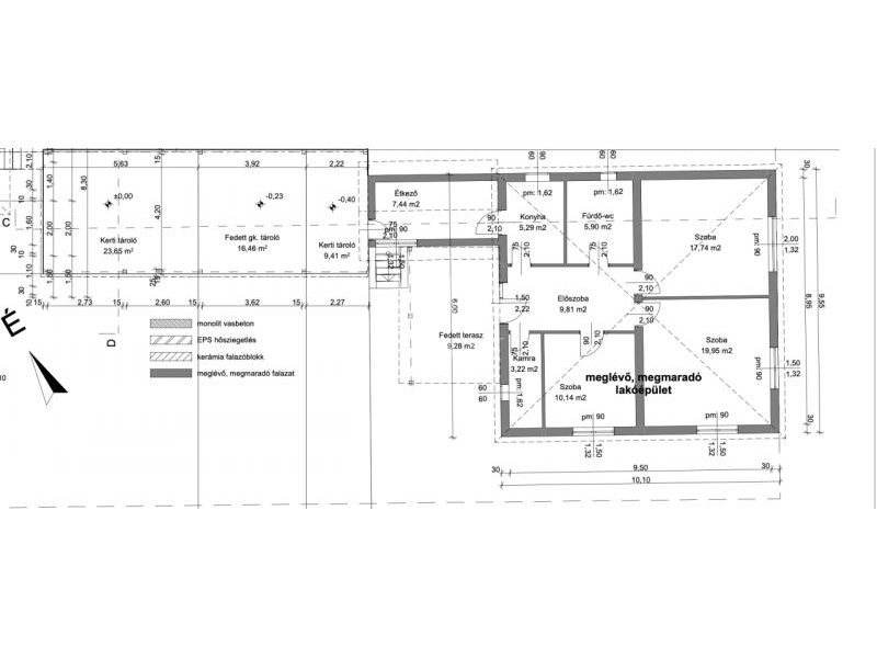
Dunaharaszti Óvárosában kínálunk megvételre egy nettó 79 nm alapterületű, téglából épült, önálló családi házat, 10 nm-es fedett terasszal 487 nm-es telken.
A telken található még, egy 16,5 nm-es fedett gépkocsi beálló +33 nm-es fedett kerti tároló.
2025-ben lettek beépítve új nyílászárok, szúnyoghálóval illetve redőnnyel szerelve.
A tető 15 éve lett felújítva. A fűtést gáz církó biztosítja radiátoros hőleadással + 2 db hűtő-fűtő klíma lett felszerelve.
A kert locsolását fúrt kút biztosítja.
Ingatlan beosztása:
- előszoba 9,81nm
- kamra 3,22nm
- konyha 5,29nm
- étkező 7,44nm
- fürdőszoba 5,9nm
- szoba 10,14nm
- szoba 17,74nm
- szoba 19,95nm
-----------------------------
nettó: 79,49nm
Hév,buszmegálló a közelben. Iskola ,óvoda,bölcsöde,orvosi rendelő séta távolságra található.
Amivel segítjük az Ön ingatlanvásárlását:
- ingyenes hitelügyintézés,
- jogi háttér,
- földhivatali ügyintézés,
- energetikai tanúsítvány,
- a vevő számára az ingatlanközvetítés ingyenes.
Irodánk 30 éves szakmai tapasztalattal áll ügyfelei rendelkezésére!
Várom szíves megkeresését!