Ajánlói Link másolása
Dunaharaszti
kep Galéria
kep
kep
kep
kep
Feladva:2026-03-03 02:09
Profi hirdetés kiemelés előresorolással kiemelés 20+5 napig
Dunaharaszti
209 000 000 Ft
Dunaharaszti
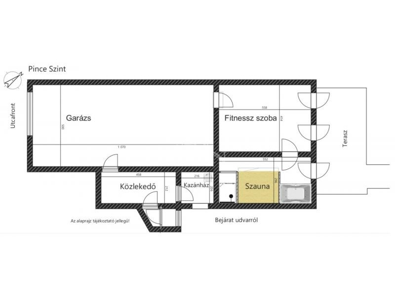
Eladó önálló családi ház Dunaharaszti kertvárosi részén, a Dunaparthoz közeli utcában. A ház hasznos alapterülete 280 m2, és öt szobával rendelkezik. Az ingatlan 825 m2-es telken helyezkedik el. Az ingatlan sok lehetőséget rejt magában, akár iroda vagy egyéb vállalkozás kialakítására is alkalmas. A Dunapart közelsége miatt a környezet ideális pihenésre, kikapcsolódásra. Az ingatlan beosztása: Pince szint: - garázs 53,5 m2 - szoba 23,1 m2 - szauna + fürdő + WC 16,3 m2 - kazánház 4,4 m2 - közlekedő 9,7 m2 Földszint: - előtér 8,9 m2 - wc 1,6 m2 - étkező 18,3 m2 - konyha 16,8 m2 - szoba 40 m2 - terasz (utcafront) 25 m2 - terasz 12,9 m2 Emelet: - közlekedő 5,2 m2 - szoba 23,3 m2 (190cm alatti: 15,9 m2) - szoba 38,2 m2 (190cm alatti: 25,9 m2) - fürdő+wc 12,9 m2 (190cm alatti: 8,4 m2) Felszereltség: - elektromos garázskapu, - elektromos kapu, - 3 rétegű fa nyílászárók, - kandalló, - 10 kW napelem, - riasztó, - gépkocsi beálló. A közlekedés kiváló, busz és HÉV által Budapest Közvágóhíd 20 perc alatt elérhető, autóval pár perc az M0-ás autópálya. A közelben LIDL és Aldi nyújt bevásárlási lehetőséget. Befektetésnek is alkalmas, a környéken 600.000-900.000 Ft/hó + rezsi áron vannak hasonló kiadó ingatlanok, ami évente 7.000.000,- Ft bevételt is jelenthet. Amivel segítjük az Ön ingatlanvásárlását: - ingyenes hitelügyintézés, - jogi háttér, - földhivatali ügyintézés, - energetikai tanúsítvány. Irodánk 30 éves szakmai tapasztalattal áll ügyfelei rendelkezésére! Várom szíves megkeresését!
Bruttó ár
209 000 000 Ft
Elérhetőségek
+36-... Megjelenítés
Weboldal link
0
Videó link
0
Cim
Magyarország
Pest megye
Dunaharaszti
Dunaharaszti, Dunaparthoz közeli
Hirdetés leirása
Hirdetés azonosító:41166