Ajánlói Link másolása
Dunaharaszti
kep Galéria
kep
kep
kep
kep
Feladva:2025-10-28 02:11
Profi hirdetés kiemelés előresorolással kiemelés 20+5 napig
Dunaharaszti
124 900 000 Ft
Dunaharaszti
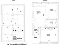
Két önálló családi ház egy telken! Összeköltözők, befektetők figyelmébe ajánlom! Két generáció együttélésére alkalmas ingatlant kínálunk megvételre Dunaharaszti Óvárosi részén. A 787 nm-es telken egy 95 nm-es és egy 55 nm-es önálló családi ház található. Az 1. ház paraméterei: 2020-ban felújították, - alapterülete nettó 95 nm, - téglaépítésű, szigetelt, homlokzata fa dekor panelekkel burkolt, - 2 rétegű műanyag nyílászárók, - fűtése Hajdú 1000 literes 2 hőcserélős puffertartályról, radiátoros hőleadással, - nappaliban 9 Kw-os kandalló, - 1 db hűtő-fűtő klima, - riasztó rendszer. Beosztása: -földszint- - előszoba, - konyha+ ebédlő, - hálószoba, - kádas fürdőszoba+WC, - nappali, - az emeleten 1 szobát alakítottak ki. - szuterén szinten kazánház 8nm, és a tároló 18,6nm található. A 2. ház paraméterei: felújított, 80 %-ban kész, - alapterülete nettó 55 nm, - tégla és ytong falazattal, külső szigeteléssel, - fa nyílászárókkal, - 1 db hűtő-fűtő klíma. Az udvarban gyűrűs kút van, öntözőrendszer előkészítve. Az ingatlan elhelyezkedése kiváló. Iskola, óvoda, orvosi rendelő, HÉV- megálló gyalogosan néhány perc alatt elérhető. Amivel segítjük az Ön ingatlanvásárlását: - ingyenes hitelügyintézés, - jogi háttér, - földhivatali ügyintézés, - energetikai tanúsítvány, - a vevő számára az ingatlanközvetítés ingyenes. Irodánk 30 éves szakmai tapasztalattal áll ügyfelei rendelkezésére! Várom szíves megkeresését!
Bruttó ár
124 900 000 Ft
Elérhetőségek
+36-... Megjelenítés
Weboldal link
0
Videó link
0
Cim
Magyarország
Pest megye
Dunaharaszti
Eötvös utca
Hirdetés leirása
Hirdetés azonosító:38257