Ajánlói Link másolása
Budaörs
kep Galéria
kep
kep
kep
kep
Feladva:2026-05-19 02:21
Profi hirdetés kiemelés előresorolással kiemelés 20+5 napig
Budaörs
73 500 000 Ft
Budaörs
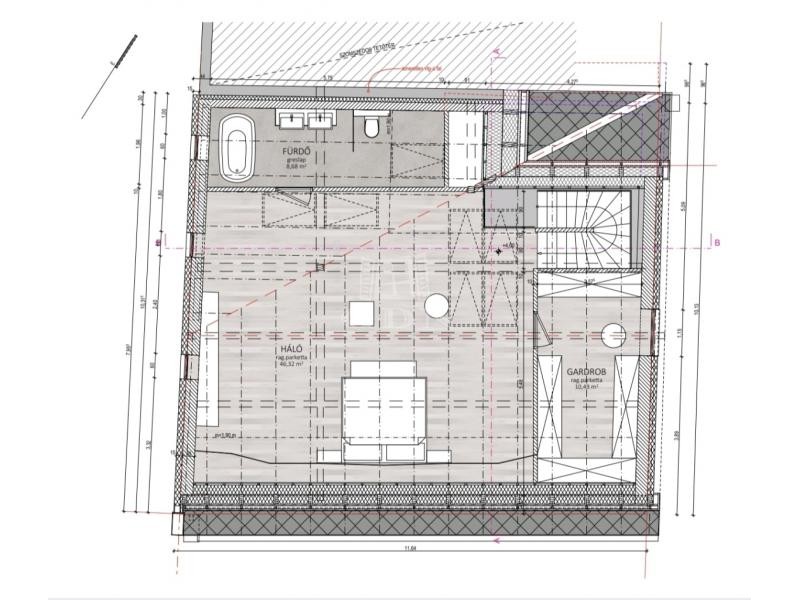
Érvényes építési engedéllyel rendelkező, helyi védettségű ingatlan eladó Budaörs kertvárosi részén Budaörs egyik közkedvelt kertvárosi részén kínálunk megvételre egy helyi védettség alatt álló lakóépületet, amely egyedi építészeti adottságainak és fejlesztési lehetőségeinek köszönhetően különleges lehetőséget kínál leendő tulajdonosa számára. Az épület hagyományos, tömör tégla szerkezettel épült, stabil műszaki alapokkal rendelkezik, jelenlegi állapota azonban teljes körű felújítást igényel. Az ingatlan egyik legnagyobb előnye, hogy a felújítási és átépítési folyamat előkészítése már megtörtént. Az ingatlanhoz rendelkezésre áll a 2025-ben kiadott, 4 évig érvényes építési engedély, valamint a teljes, jóváhagyott tervdokumentáció, amely jelentős idő- és adminisztratív előnyt biztosít a következő tulajdonos számára. A jóváhagyott tervek alapján egy 209 m²-es, pince + földszint + tetőtér kialakítású, egylakásos lakóépület valósítható meg. Az előkészített projekt lehetőséget biztosít arra, hogy a meglévő építészeti értékek megőrzése mellett korszerű, a mai igényeknek megfelelő otthon kerüljön kialakításra. A környék infrastruktúrája kiváló, a központi elhelyezkedésnek köszönhetően rövid távolságon belül elérhetők a mindennapi élethez szükséges szolgáltatások, oktatási intézmények, bevásárlási lehetőségek és közlekedési kapcsolatok. Az ingatlan teljes tervdokumentációja és engedélyezési anyaga rendelkezésre áll. Igény esetén a kivitelezés teljes körű koordinációjában is segítséget biztosítunk.
Bruttó ár
73 500 000 Ft
Elérhetőségek
+36-... Megjelenítés
Weboldal link
0
Videó link
0
Cim
Magyarország
Pest megye
Budaörs
Budaörs Kertváros
Hirdetés leirása
Hirdetés azonosító:42043