Profi hirdetés kiemelés előresorolással kiemelés 20+5 napig
Bag
75 900 000 Ft
Bag
Eladásra kínálok Budapesttől 30 perc autóútra, az M3autópálya mentén fekvő Bag település rendezett, központi részén, egy 1970-es években épült, 1990-es évek végén felújított tégla szerkezetű, cserép fedésű családiházat.
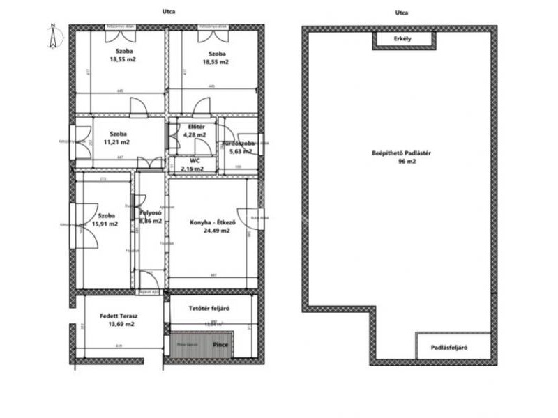
Felosztása:
-pince
-földszint: 25 nm nagyságú konyha, amely kiválóan alkalmas amerikai konyha kialakítására. 4 hálószoba, egy fürdőszoba, különálló wc, és egy előtér. A fedett terasz 14 nm nagyságú.
-tetőtér: beépítetlen, azonban az erkély kialakítva, így a lehetőség adott, hogy további 96 nm nagyságú lakóteret alakítson ki az új tulajdonos!
Különálló garázs az udvarban!
További melléképület, amely nyári konyhaként funkócionál.
Rendezett udvar.
Rövid időn belül költözhető!
Hívjon bizalommal, tekintsük meg együtt!
A hirdető nem rendelkezik saját hirdetési aloldallal.