Ajánlói Link másolása
Albertirsa
kep Galéria
kep
kep
kep
kep
Feladva:2025-10-21 02:03
Profi hirdetés kiemelés előresorolással kiemelés 20+5 napig
Albertirsa
118 000 000 Ft
Albertirsa
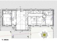
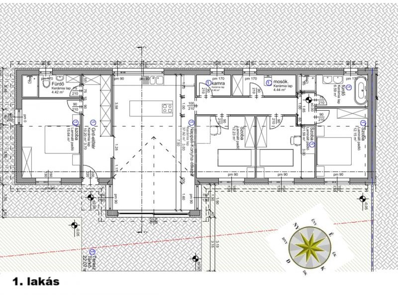
ELADÓ ALBERTIRSÁN, egy KÖZPONTI, ÖSSZKÖZMŰVES, ASZFALTOZOTT UTCÁBAN ÚJ ÉPÍTÉSŰ, FÖLDSZINTES, AKADÁLYMENTES, AZONNAL BEKÖLTÖZHETŐ családi ház (kétlakásos társasház) SAJÁT KERTTEL, KÜLÖN BEJÁRATTAL. KÉT GENERÁCIÓNAK IS ALKALMAS, KIEMELKEDŐ MŰSZAKI TARTALOMMAL + H tarifával. 1. lakás GARÁZS épülettel - Elrendezés: 4 hálószoba + nappali + 2 fürdő + kamra + háztartási helyiség - Lakótér: 127 m2 - Terasz: 22 m2, 600m2-es SAJÁT KERT - Külön épület: 37 m2, KÉTÁLLÁSOS GARÁZS - Teljes hasznos nettó terület: 175 m2 (127 + 37 + 11) - Ár: 118 M Ft 2. lakás - Elrendezés: 4 hálószoba + nappali + 2 fürdő + kamra + háztartási helyiség - Lakótér: 124 m2 - Terasz: 26 m2, 730m2-es SAJÁT KERT - Teljes hasznos nettó terület: 137 m2 (124 + 13) - Ár: 102 M Ft Szerkezet és hőszigetelés: - Főfal: Leier 30 NF tégla - Válaszfalak: Leier 20 S és 10 tégla - Padló alatti szigetelés: EPS 100 (10 cm) - Külső nyílászárók: fehér műanyag, 3 rétegű üvegezéssel - Födémszigetelés: 30 cm ásványgyapot - Fa tetőszerkezet, tetőhéjazat: Bramac betoncserép - Homlokzati szigetelés: 10 cm EPS - Lábazati szigetelés: 5 cm + barna szemcsés díszvakolat Gépészet és komfort: VILLANYSZERELÉS: 3x16 A +1x25A H tarifás kiépítéssel. - Hőszivattyú: japán Fujitsu High Power fűtésre és melegvíz-ellátásra - Hidegburkolatos helyiségekben PADLÓFŰTÉS - Szobákban és nappaliban digitális vezérlésű, HŰTŐ-FŰTŐ Galletti Flat FANCOILOK - Fürdőszobánként 1 db törölközőszárító fali radiátor Vízszerelés: - 2 db fürdőszoba: fürdőnként törölközőszárítós RADIÁTOR; RAVAK ROSA II akril SAROKKÁD + zuhanyzó; GEBERIT WC falsík mögötti tartály nyomólappal. A másik fürdőben zuhanyzó, + GEBERIT WC. Elhelyezkedés és megközelítés - ÖNÁLLÓ MEGKÖZELÍTHETŐSÉG, SAJÁT MÉRŐÓRÁK - Vasútállomás: 15 perc séta / 2 perc autó - Óvoda: ~900 m, bevásárlás: ~1 km - Budapest: ~35 km Praktikus, MINDENKI számára jól használható terek, korszerű gépészet és igényes szerkezet – MEGBÍZHATÓ, ÉRTÉKÁLLÓ választás. Amennyiben felkeltette a meghirdetett ingatlan az érdeklődését, keressen bizalommal. Kihagyhatatlan ajánlatok: CSOK+, kedvezményes kamatozású lakáshitelek. Az ország szinte összes bankjának a hiteleit is kínáljuk, egyedi, általunk igénybe vehető kedvezményekkel, díjmentes ügyintézéssel.
Bruttó ár
118 000 000 Ft
Elérhetőségek
+36-... Megjelenítés
Weboldal link
0
Videó link
0
Cim
Magyarország
Pest megye
Albertirsa
ÚJ ÉPÍTÉSŰ 100%-os készültséggel!
Hirdetés leirása
Hirdetés azonosító:38423