Ajánlói Link másolása
Üllő
kep Galéria
kep
kep
kep
kep
Feladva:2026-03-28 02:10
Profi hirdetés kiemelés előresorolással kiemelés 20+5 napig
Üllő
109 000 000 Ft
Üllő
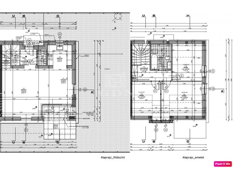
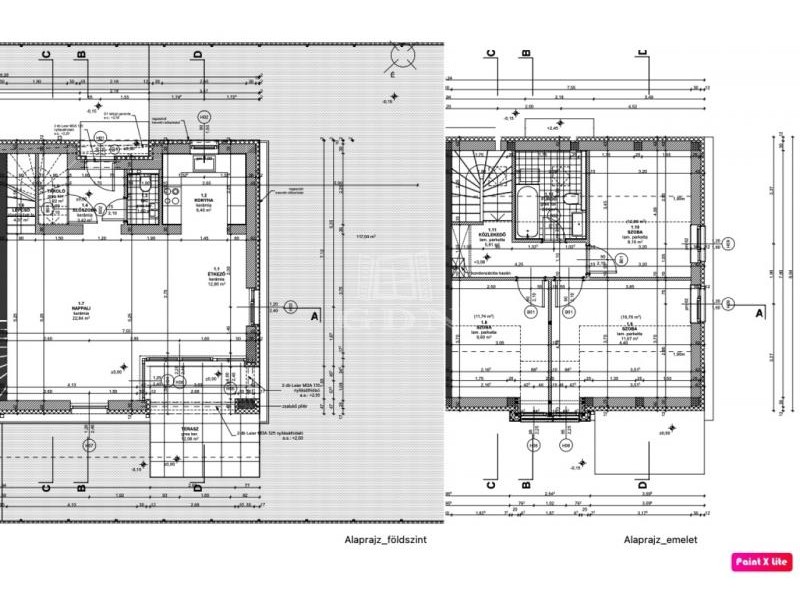
NAGYCSALÁDOSOK FIGYELEM! Üllőn a Sportliget lakóparkban, megvételre kínálok egy 2018-ba épült ikerház felet. Az ingatlan Leiertherm 30N+F kerámia téglából, 10 cm-es homlokzati szigetelőrendszerrel, 10 cm-es YTONG válaszfalakkal, 15 cm-es mennyezeti paplan szigeteléssel épült, 2 rétegű műanyag nyílászáróval szerelt, 3 külön nyíló szobával, dupla komforttal nagy amerikai konyhás nappalival rendelkezik. Fűtését, egy CALEO elektromos rendszer adja. 2019-ben SolarEdge 5,4 kWp napelem rendszer lett telepítve, mely az ingatlan teljes elektromos rendszerét táplálja. Átlagos éves termelés stabilan 4 - 5,2 MWh. A földszinten található egy gépészeti helyiség, wc kézmosóval, kényelmes nagy nappali konyhával, közvetlen kertkapcsolattal. Az emeleten három teljes értékű külön nyíló szoba és egy kádas fürdőszoba lett kialakítva. A kizárólagos használatú 250 nm-es kert, kényelmes kikapcsolódást nyújt és gyorsan karbantartható. 1 személyautó parkolására van lehetőség. Közlekedés. Budapest belvárosa 35 - 60 perc autóval, Üllő vasútállomás, 17 perc gyalogosan, 4 perc autóval. Amennyiben hirdetésem felkeltette érdeklődését, várom hívását a hét bármely napján. tp
Bruttó ár
109 000 000 Ft
Elérhetőségek
+36-... Megjelenítés
Weboldal link
0
Videó link
0
Cim
Magyarország
Pest megye
Üllő
Bozsik József körút
Hirdetés leirása
Hirdetés azonosító:41092