Érd
MAGAS MŰSZAKI TARTALOM, IGÉNYES KIVITELEZÉS, UTOLSÓ FÖLDSZINTI ELADÓ LAKÁS ÉRDLIGET LEGSZEBB RÉSZÉN.
A lakás kiválóan alkalmas nagycsaládosoknak vagy 2 generációs lakásnak ( 2 különálló lakrésszel ), vagy lakás-üzlet vagy lakás-szolgáltatást nyújtó vállalkozásnak is !
Érd központi részén, de mégis kertvárosi utcában csendes környezetben, végig aszfaltúton megközelíthető helyen eladó egy ÚJ ÉPÍTÉSŰ fokozottan energiatakarékos, KERTKAPCSOLATOS földszinti lakás, saját kertrésszel.
A szóban forgó ingatlan egyetlen albetéten szerepel, ugyanakkor a két lakás külön bejárati ajtóval rendelkezik, amelyek az épület belső folyosójáról nyílnak. Az ingatlant kizárólag egyben kívánja értékesíteni a tulajdonos, de amennyiben két vevő egyidejűleg vásárolná meg, az értékesítés megosztási szerződéssel megoldható.
Az „A” jelű lakóegység előtt az utcafronton két-két gépkocsi elhelyezésére alkalmas felszíni parkolóhely került kialakításra. Ezekről a parkolókról – ügyfélforgalom esetén – az ingatlanrészek közvetlenül is megközelíthetők, mivel a teraszajtók bejárati ajtóként funkcionálnak.
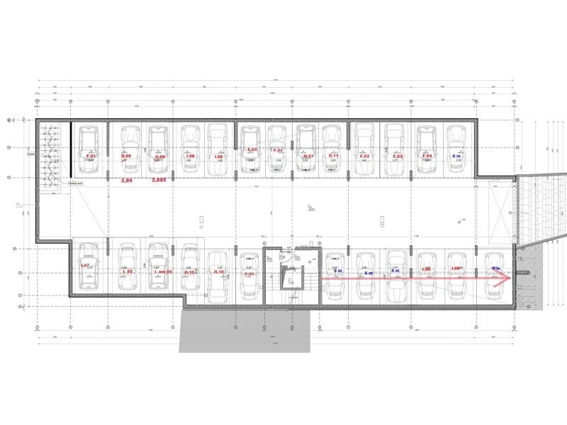
Az épület pincei szintjén található teremgarázsban további parkolóhelyek és tárolók is megvásárolhatók, ezek mind külön albetétként szerepelnek.
A lakás megvásárlásához legalább egy parkolóhely (belső vagy külső) megvásárlása kötelező.
A projekt tervezett átadási ideje: 2026. május vége
Teremgarázsban beállási lehetőség: 9 MFt./db. ( 16 m2/db. ), összesen 2 db. szabad van.
Tároló: 3 MFt./db. ( 7 m2 ), 1 db. szabad tároló van.
Felszíni kocsibeálló a lakás előtt: 7 MFt./db. ( 24 m2/db. ; 2 db. autó számára alkalmas egy beállási lehetőség ), összesen 2 db. szabad felszíni beálló van.
Rövid műszaki ismertető:
Energetikai besorolás: A+
A 4 szintes (P+FSZT.+IEM.+IIEM) társasház 11 db lakást tartalmaz amiből 2 db lakás kétgenerációs kialakítású. A lakások rendelkeznek kert, erkély és tetőterasz valamelyikével. Továbbá lakáson belüli / kívüli tároló lehetőséggel. Akadálymentes bejutás az épületbe.
Felszereltség:
Hanggátló biztonsági lakásbejárati ajtók. A külső nyílászárók műanyag szerkezetűek, bukó - nyíló kivitelben, 3 rétegű hőszigetelésű üvegezéssel. Redőny előkészítés/ beszerelés igény szerint.
Belső burkolás a vevő igénye szerint. Alapkínálatból vagy egyedi igény alapján választható belső ajtók. Lakáselválasztó hang gátló falak kerülnek kialakításra.
Lakásonként egyedi fogyasztásmérők (hidegvíz, melegvíz, fűtés, áram).
Helyiségenként digitálisan vezérelt hőszivattyús hűtés/fűtés.
Extrák:
- Okosotthon alaphálózat, igény szerint bővíthető
- Internetről távolról telefonnal vezérelhető hűtés/fűtés lehetőség
- Lakásonként videokaputelefon
- Közösségi terekben kamerahálózat (CCTV)
- Teremgarázs elektromos gépkocsi töltési lehetőség
- Szintek közötti akadálymentes közlekedés személyfelvonóval
- Teremgarázsban közösségi kerékpár tároló
Gyönyörű csendes környezet, jó levegő - kár lenne kihagyni!
A közelben buszmegálló. Óvoda, iskola, bevásárlási lehetőségek gyalogosan vagy autóval pár perc alatt elérhetők!
A kivitelező Megbízható, sok éves tapasztalattal rendelkezik, aki garantálja a kiváló minőséget garanciával!
Az ingatlan részletes ismertetése és bemutatása előre egyeztetett időpontban lehetséges, melyet nagyon rugalmasan kezelünk, akár HÉTVÉGÉN is.
További kérdéseivel kapcsolatban várom a jelentkezését.
Amennyiben Önnek a vásárláshoz szüksége lenne hitelre, babaváró kölcsönre, lakástakarékra, stb., kezdeményezheti a kapcsolatfelvételt bankfüggetlen hitelügyintézőinkkel, teljesen DÍJMENTESEN.
Közel 25 év szakmai tapasztalattal rendelkezem, eladó vagy kiadó ingatlana értékesítése vagy bérbeadása esetén, készséggel állok az Ön rendelkezésére is, keressen bizalommal.