Ajánlói Link másolása
Érd
kep Galéria
kep
kep
kep
kep
Feladva:2025-11-11 03:29
Profi hirdetés kiemelés előresorolással kiemelés 20+5 napig
Érd
165 000 000 Ft
Érd
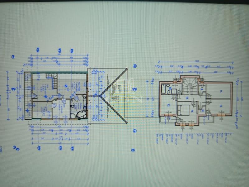
Teljesen felújított két generációs családi ház ÉRD DOMBOSVÁROSBAN ELADÓ! A két szintes családi ház 1088 nm-es telken a 190 nm lakótérben, 6 szoba, 3 fürdőszoba, 2 konyha + egy teakonyha az emeleten és egyéb helyiségekkel került kialakításra így két generáció lakhatására is kiváló lehetőséget nyújt. A földszinten AKADÁLY MENTESÍTÉSITHETŐ LAKRÉSZ is kialakítható! A 2004-ben épült ház teljes felújításra került a legjobb minőségű anyagok felhasználásával és kiváló szakemberek munkájával. Az első födém betongerendás a második födém könnyű szerkezetes, teljesen felújítva, a tető TONDACH cseréppel borítva. Nyílászárók 6 légkamrás, 8,5 cm tokszerkezettel, fehér műanyag. A fűtés és meleg víz ellátást BOSCH cirkó gázkazán biztosítja, fürdőszobák elektromos törölköző szárítókkal felszerelve. A ház belterében a nyári időszakban légkondicionáló berendezések biztosítják a kellemes hőmérsékletet. Az épület homlokzata 15 cm-es , míg a lábazat 10 cm-es szigetelést kapott. A tömeg közlekedés /távolsági busz/, iskola, óvoda, vásárlási lehetőség 5 perces sétával elérhető. A telek mérete lehetőséget nyújt, ház bővítésére, fürdőmedence /fúrt kút adott/, játszótér, gyümölcsös kert kialakítására /+ költség / A nagy méretű terasz és erkély, kellemes összejövetelek megtartására, vagy szabadidő eltöltésére ad lehetőséget. Az ingatlan az alábbi extrákkal rendelkezik: Kiépített riasztó rendszer Kapu telefon Elektromos távirányítású kapu Fúrt kút A fent leírtak meggyőződéséről a személyes megtekintés ad tanúbizonyságot! Nézze meg nem fog csalódni! Várom hívását a hét bármely napján! AMENNYIBEN NEM RENDELKEZIK A TELJES VÉTELÁRRAL, segítünk Önnek megtalálni a legjobb megoldást! BANKFÜGGETLEN hitelcentrumunk minden elérhető bank és hitelintézet ajánlatát versenyezteti az Ön kedvéért, ráadásul díjmentesen. Önnek nincs más dolga, mint elbeszélgetni munkatársunkkal, aki a hallott információk alapján versenyre hívja a bankokat, hogy Ön hosszú távon is a legjobb konstrukciót kaphassa. A legjobb ajánlatokból végül Ön választhatja ki a nyertest. Munkatársaink sokéves szakmai tapasztalattal várják Önt, előre egyeztetve akár a normál munkaidő után is.
Bruttó ár
165 000 000 Ft
Elérhetőségek
+36-... Megjelenítés
Weboldal link
0
Videó link
0
Cim
Magyarország
Pest megye
Érd
Börzsöny utca
Hirdetés leirása
Hirdetés azonosító:32283