Ajánlói Link másolása
Gyermely
kep Galéria
kep
kep
kep
kep
Feladva:2026-02-22 02:03
Profi hirdetés kiemelés előresorolással kiemelés 20+5 napig
Gyermely
29 900 000 Ft
Gyermely
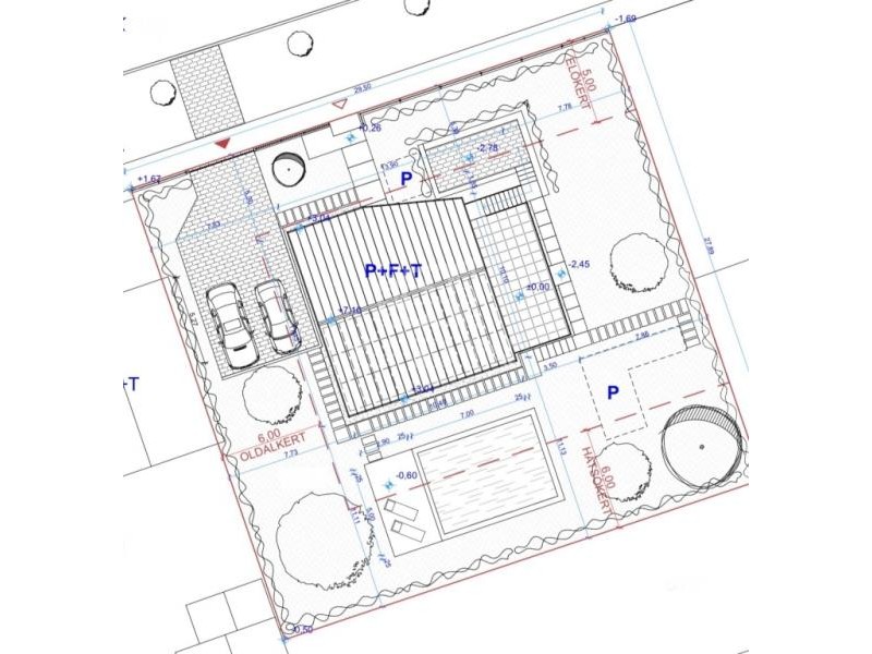
Eladó családi ház panorámás telken! Megvételre kínálunk Budapesttől 40 km távolságra, M1-es autópálya zsámbéki leágazásától 10 km-re, a nyugalom és béke érzését nyújtó Gyermely település központjában egy nettó 125 nm alapterületű, építés alatt álló, önálló családi házat 822 nm-es telken. A munkálatokat 15 évvel ezelőtt megkezdték, az új tervek 2 éve készültek, aminek már elkezdték a munkálatait, családi okokból nem fejezték be, a terveket mellékeltük a hirdetésben. Amivel segítjük az Ön ingatlan vásárlását: - ingyenes hitelügyintézés (CSOK és Babaváró és egyéb hitel ügyintézése is) - jogi háttér, - földhivatali ügyintézés, - energetikai tanúsítvány ügyintézése, - a vevő számára ingyenes az ingatlanközvetítés. Várom szíves megkeresését.
Bruttó ár
29 900 000 Ft
Elérhetőségek
+36-... Megjelenítés
Weboldal link
0
Videó link
0
Cim
Magyarország
Komárom-Esztergom megye
Gyermely
Központban
Hirdetés leirása
Hirdetés azonosító:40930