Ajánlói Link másolása
Hatvan
kep Galéria
kep
kep
kep
kep
Feladva:2025-09-14 02:04
Profi hirdetés kiemelés előresorolással kiemelés 20+5 napig
Hatvan
49 900 000 Ft
Hatvan
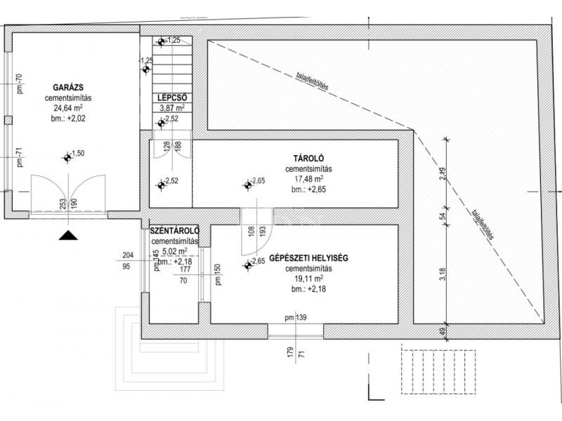
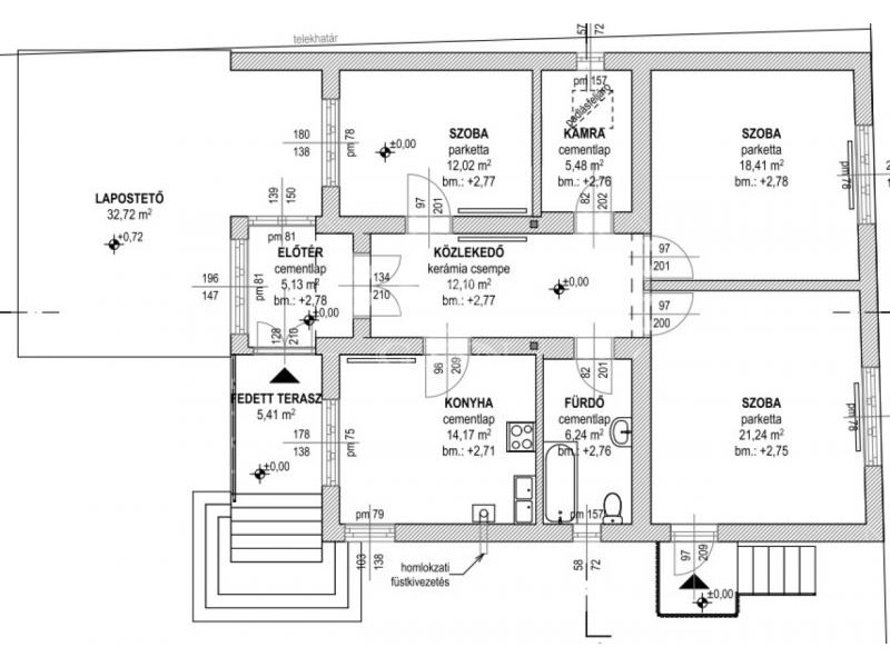
Hatvanban ELADÓ egy 3 szobás közepes állapotú, lakható családi ház, komplett felújítási tervekkel, érvényes építési engedéllyel! Irár: 49.900.000.-Ft Az ingatlan egy 1407nm-es telken Új-hatvanban található. A „Kádár-kocka” jellegű ház jó állapotban van, azonnal költözhető. Földszint: 112,95 nm -3 szoba (21nm,18nm,12nm) -konyha -kamra -fürdő + WC -előtér -közlekedő Pinceszint: 45nm Garázs: 25nm A kertben gyümölcsfák és szőlőültetvény található. A vételár tartalmazza a teljes tervdokumentációt, engedélyeket! Hitelezhető: CSOK+ képes, 3% -os Otthon Start hitel valamint a 3+3 milliós támogatás is felvehető rá! Ne maradjon le róla! Várom hívását! 0620/458-4262
Bruttó ár
49 900 000 Ft
Elérhetőségek
+36-... Megjelenítés
Weboldal link
0
Videó link
0
Cim
Magyarország
Heves megye
Hatvan
Béke út
Hirdetés leirása
Hirdetés azonosító:37284