Ajánlói Link másolása
Csány
kep Galéria
kep
kep
kep
kep
Feladva:2025-11-25 02:41
Profi hirdetés kiemelés előresorolással kiemelés 20+5 napig
Csány
45 900 000 Ft
Csány
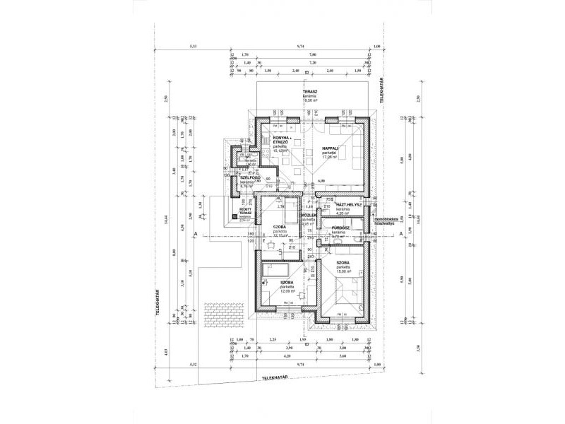
Csányon a Nagy úton , 784 m2-es telken, újonnan épülő nettó 93 m2 hasznos lakótérrel rendelkező, 3 szoba + nappalis önálló családi ház eladó. Az ingatlan 30-as Nútféderes tégla falazóelemből épül, fa födémmel. A tető héjazata antracit betoncserép lesz, a homlokzatok 15cm EPS, a padló 10cm Austrotherm AT-N100-as, a vízszintes födém 25cm Ásványgyapot szigeteléssel lesz ellátva. Hat légkamrás 3 rétegű evegekkel szerelt nyílászárók kerülnek beépítésre. A fűtést 8kw-os monoblockos hőszivattyús rendszer fogja ellátni, padlófűtéssel. A műszaki tartalom választható az alábbi költségkereten belül: -hidegburkolat:3000.- Ft./m2-ig. -melegburkolat:3000.- Ft./m2-ig -csaptelepek:15.000.- Ft./db -kád vagy zuhany: 40.000.- Ft. -beltéri ajtók:35.000.- Ft./db Elektromos kiépítés: -Konnektorok szobákban: 3 db -Konnektorok nappaliban 4db + internet és kábeltv kiállás -Konnektorok konyhában: 6db -Világítás helyiségenként 1-1 db -Kábeltévé: Előkészítés Magasabb árú tatalom is választható a különbség finanszírozásával. Riasztó előkészítés és kapu mozgató elektronika előkészítés is készül. Kérésre szívesen küldünk komplett tervdokumentációt, műszaki leírást. A kivitelező korábban számos ingatlant épített,a már értékesített és birtokbaadott ingatlanokat komoly érdeklődés esetén szívesen megmutatjuk referenciaként. Várható átadás 2026 első negyedév! INGYENES hitel tanácsadás, CSOK Plusz ügyintézés! BANKFÜGGETLEN hitelcentrumunk az összes elérhető bank és hitelintézet ajánlatát versenyezteti az Ön kedvéért, ráadásul DÍJMENTESEN. - Egyedi, bankfiókban nem elérhető kamat- és díjkedvezmények - Hitelképesség vizsgálat - Idő, energia és pénz megtakarítás - Teljes hivatali ügyintézés Amennyiben hirdetésem felkeltette az érdeklődését vagy egyéb információra van szüksége hívjon bizalommal!
Bruttó ár
45 900 000 Ft
Elérhetőségek
+36-... Megjelenítés
Weboldal link
0
Videó link
0
Cim
Magyarország
Heves megye
Csány
Nagy út
Hirdetés leirása
Hirdetés azonosító:35489