Ajánlói Link másolása
Kiadó Székesfehérvár
kep Galéria
kep
kep
kep
kep
Feladva:2026-03-24 02:10
Profi hirdetés kiemelés előresorolással kiemelés 20+5 napig
Székesfehérvár
1 053 500 Ft
Kiadó Székesfehérvár
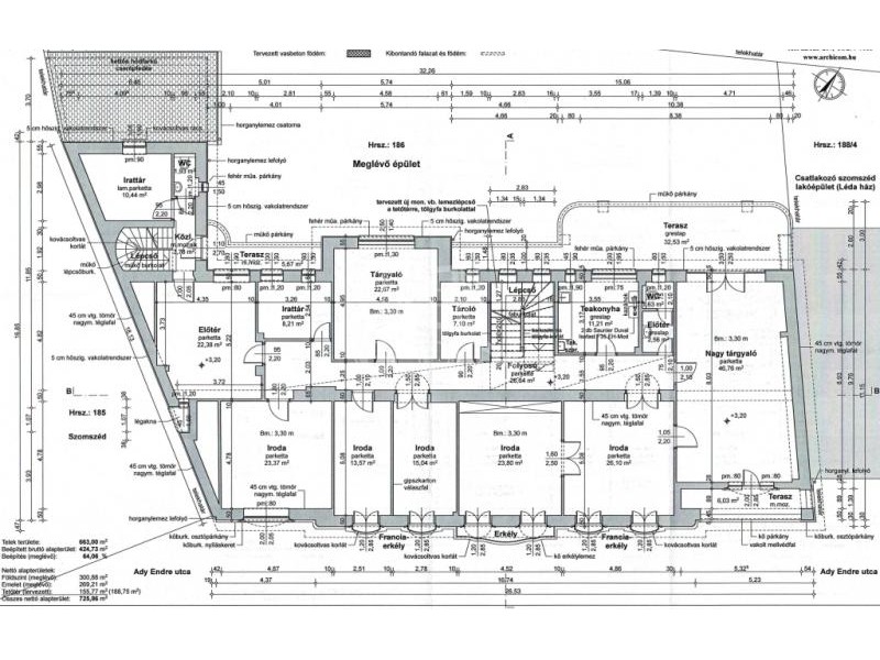
Bip-001768. Történelmi belvárosban, frekventált helyen, irodaház emeletén, teljesen elszeparált, 301 nm-es irodaegység kiadó! Az igényes, kétszintes épület felújított. Jellemzők: ‣ központi elhelyezkedés ‣ jól megközelíthető ‣ fűtés gázkazán + radiátor ‣ riasztó ‣ rezsi elszámolás mért fogyasztás alapján ‣ fizetős de könnyű parkolás közvetlenül az ingatlan előtt ‣ ráccsal védett bejárat ‣ bútorozott ‣ külön mosdó, WC, valamint teakonyha biztosított az irodákhoz Bérleti díj: 3500Ft/nm+ÁFA+rezsi+3 hó kaució. Ha felkeltette érdeklődését, hívja irodánkat bizalommal, éljen ingyenes, személyre szabott hitelügyintézés szolgáltatásunkkal. Segítünk továbbá adásvételhez szükséges ügyvédi közreműködésben, energetikai tanúsítvány, valamint értékbecslés elkészítésében. .
Bruttó ár
1 053 500 Ft
Elérhetőségek
+36-... Megjelenítés
Weboldal link
0
Videó link
0
Cim
Magyarország
Fejér megye
Székesfehérvár
Történelmi belváros közelében
Hirdetés leirása
Hirdetés azonosító:41590