Ajánlói Link másolása
Kiadó Székesfehérvár
kep Galéria
kep
kep
kep
kep
Feladva:2025-11-11 02:02
Profi hirdetés kiemelés előresorolással kiemelés 20+5 napig
Székesfehérvár
350 000 Ft
Kiadó Székesfehérvár
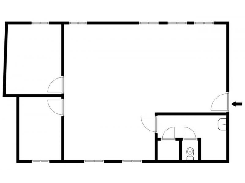
Bip-004514. Székesfehérvár központjában, a Skála épülete mellett 70m2 alapterületű iroda üzlethelyiség egyben illetve osztva is bérbeadó. Elosztását tekintve egy tágas és világos egylégterű ügyféltéből, 2 helyiségből, valamit egy wc-zuhanyzó-teakonyha vizesblokkból áll. Bérelhető a helyiségek a következő tevékenységekre: fodrász, kozmetikus, masszőr, pedikűr-manikűr, pillás tevékenységekre Jellemzők: ‣ belvárosi lokáció, könnyű megközelíthetőség ‣ parkolóhely bérelhető közvetlenül az épület előtt ‣ kiépített riasztó és biztonsági kamera rendszer ‣ fűtés gázkazánnal, radiátoros hőleadással ‣ minden helyiség klimatizált Bérleti díj: összesen: 350.000 Ft /hó (nem áfás) +rezsi +2 hó kaució vagy tevékenységeként 60 000-90 000Ft+rezsi Ha felkeltette érdeklődését, hívja irodánkat bizalommal, éljen ingyenes, személyre szabott hitelügyintézés szolgáltatásunkkal. Segítünk továbbá adásvételhez szükséges ügyvédi közreműködésben, energetikai tanúsítvány, valamint értékbecslés elkészítésében. For English details please send us a message or an e-mail, thank you.
Bruttó ár
350 000 Ft
Elérhetőségek
+36-... Megjelenítés
Weboldal link
0
Videó link
0
Cim
Magyarország
Fejér megye
Székesfehérvár
Kégl György
Hirdetés leirása
Hirdetés azonosító:38872