Ajánlói Link másolása
Kiadó Székesfehérvár
kep Galéria
kep
kep
kep
kep
Feladva:2025-10-21 02:02
Profi hirdetés kiemelés előresorolással kiemelés 20+5 napig
Székesfehérvár
1 750 000 Ft
Kiadó Székesfehérvár
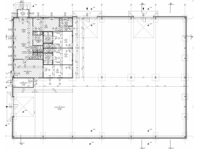
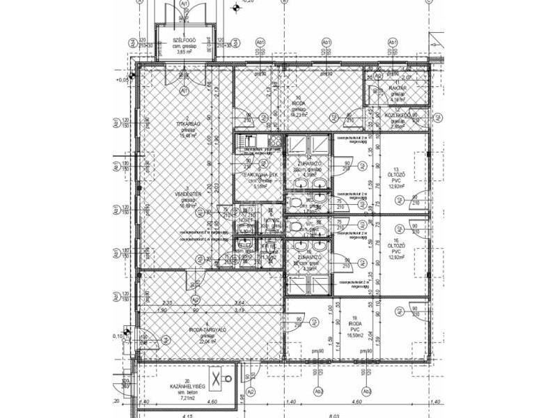
English text follows! Bip-001893. Váralján 850m2 összalapterületű önálló ipari csarnok / telephely kiadó! A modern csarnoképület Székesfehérvár Váralja városrészének ipari, kereskedelmi övezetében, az új dél összekötő út közelébe helyezkedik el. A Seregélyesi út- Sárkeresztúri út átkötő út (déli összekötő) megépülését, illetve az intermodális csomóponthoz kapcsolódó úthálózatfejlesztéseket követően a csarnok közúti kapcsolatai még tovább javultak, az M7-es autópálya 3km-en belül elérhetővé válik. Az ingatlan kamionnal, gépkocsival és tömegközlekedéssel is könnyen, korlátozások nélkül megközelíthető. Területkimutatás: telekterület: 2254m2 csarnoktér: 700m2 iroda/szoc. blokk: 150m2 (3 db irodából, teakonyhából, női és férfi wc-ből, szerverszobából, illetve a csarnokból nyíló női és férfi öltözőkből wc-ből és zuhanyzókból áll) Jellemzők: ‣ 2 db elektromos úszókapu (a csarnokot akár két oldalról is meg lehet közelíteni) ‣ térkövezett udvar (600m2 - nagy teljesítményű led reflektorok miatt biztosított az esetleges esti rakodás lehetősége is) ‣ 3 db ipari kapu (4m x 4,5 m) ‣ korszerű, szigetelt épület ‣ csarnokfűtés feketesugárzókkal ‣ irodai és a szociális helyiségekben gázkazánról működő padlófűtés van ‣ áramkapacitás: 3x65 A ‣ szennyvíz egy 12 m3-es zárt tartályos tárolóban kerül gyűjtésre ‣ távfelügyeletes riasztórendszerrel ellátott ‣ négy db nagyméretű tetőbevilágítónak és az oldalfalakon található ablaksoroknak köszönhetően rendkívül világos ‣ iroda födéme vasbeton, így itt egy 150m2-es tároló lett kialakítva Bérleti díj: 1.750.000 Ft +ÁFA/hó +rezsi +2 havi kaució Ha felkeltette érdeklődését, hívja irodánkat bizalommal, éljen ingyenes, személyre szabott hitelügyintézés szolgáltatásunkkal. Segítünk továbbá adásvételhez szükséges ügyvédi közreműködésben, energetikai tanúsítvány, valamint értékbecslés elkészítésében. For English details please send us a message or an e-mail, thank you. ⁃⁃⁃⁃⁃⁃⁃⁃⁃⁃⁃⁃⁃⁃⁃⁃⁃⁃⁃⁃⁃⁃⁃⁃⁃⁃⁃⁃⁃⁃⁃⁃⁃⁃⁃⁃⁃⁃⁃⁃⁃⁃⁃⁃⁃⁃⁃⁃⁃⁃⁃⁃⁃⁃⁃⁃⁃⁃⁃⁃⁃⁃⁃⁃⁃⁃⁃⁃⁃⁃⁃⁃⁃⁃⁃⁃⁃⁃⁃⁃⁃⁃⁃⁃⁃⁃⁃⁃⁃⁃⁃⁃⁃⁃⁃ Bip-001893. Production facility / warehouse with a total floor area of 850sqm for rent in Székesfehérvár! The modern industrial building is located in the industrial and commercial area of Váralja, Székesfehérvár, near the new southern connector road. Following the construction of the Seregélyesi Road–Sárkeresztúri Road connecting road (southern connector) and the road network development related to the intermodal hub, the hall’s road connections have further improved, making the M7 motorway accessible within 3 km. The property is easily accessible by truck, car, and public transport without restrictions. Area details: • Plot size: 2,254 m² • Hall space: 700 m² • Office/social block: 150 m² (comprising 3 offices, a kitchenette, male and female restrooms, a server room, as well as male and female changing rooms with restrooms and showers accessible from the hall) Features: • 2 electric sliding gates (providing access from both sides of the building) • Paved yard (600 m², equipped with high-performance LED floodlights for potential night loading) • 3 industrial doors (4m x 4.5m) • Modern, insulated building • Power capacity: 3x65 A • Sewage collected in a 12 m³ sealed storage tank • Remote-monitored alarm system • Exceptionally bright thanks to 4 large skylights and rows of windows on the side walls • The office ceiling is made of reinforced concrete, allowing for an additional 150 m² storage area Rental fee: HUF 1,750,000 + VAT/month + utilities + 2 months’ deposit If you are interested, feel free to contact our office. Take advantage of our free, personalized loan management service. We also assist with legal representation for sales transactions, energy certificates, and property valuation. For English details, please send us a message or email. Thank you!
Bruttó ár
1 750 000 Ft
Elérhetőségek
+36-... Megjelenítés
Weboldal link
0
Videó link
0
Cim
Magyarország
Fejér megye
Székesfehérvár
Váralján
Hirdetés leirása
Hirdetés azonosító:38416