Tiszasziget
ÚJ ÉPÍTÉSŰ,ÖNÁLLÓ TELKEN CSALÁDI HÁZ ELADÓ TISZASZIGETEN – ZÖLD KÖRNYEZET, PRÉMIUM KIVITELEZÉS!
Tiszaszigeten kínálunk eladásra egy exkluzív kivitelezésű, új építésű családi házat a SZIGET LAKÓPARKBAN.
A beruházást nagy szakmai tapasztalattal és kiváló referenciákkal rendelkező kivitelező valósítja meg, kiemelt figyelemmel az energiatakarékosságra, esztétikumra és a minőségi anyaghasználatra.
Főbb jellemzők:
Telek mérete: 680 m2
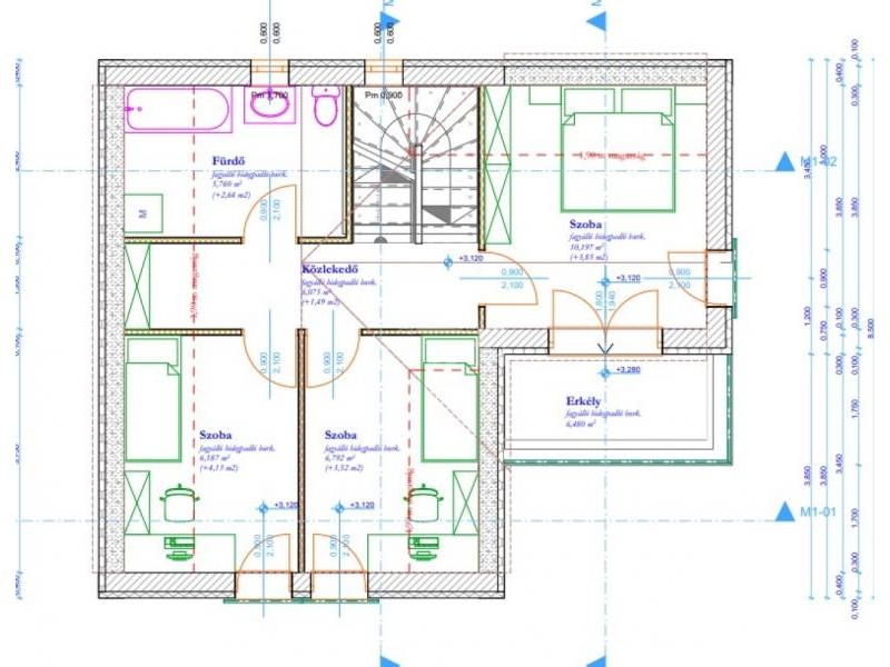
Nettó alapterület: 92,11 m² + 8 m² terasz
Amerikai konyhás nappali + étkező, 4 hálószoba, fürdőszoba, külön WC, kamra, erkély
Modern, levegő-víz hőszivattyús fűtés, padlófűtéssel
Energiahatékony, 3 rétegű nyílászárók
Egyedi választható burkolatok, szaniterek, beltéri ajtók – teljes mértékben az Ön ízléséhez igazítva!
Hő- és hangszigetelt épület, magas műszaki tartalommal
Zöldövezeti elhelyezkedés, családbarát környezet
Műszaki tartalom kulcsrakész kivitel esetén:
Teljes belső festés, burkolás
Laminált padló, hideg burkolatok egyedi választás szerint
Alföldi porcelán szaniterek, középkategóriás csaptelepek
Programozható termosztát, szabályozható hőmérséklet
Elektromos és vízszerelvények beépítve
Igény esetén redőny és szúnyogháló is rendelhető
Környezet és elhelyezkedés:
A SZIGET LAKÓPARK Tiszasziget új, kedvelt részén helyezkedik el, csendes, zöld környezetben, ideális választás családoknak és nyugalmat keresőknek.
Szeged autóval 10-15 perc alatt elérhető, a település kiváló infrastruktúrával rendelkezik.
Amitől ez az ingatlan különleges:
Modern technológia, alacsony rezsi
Igényes, egyedi belső kialakítás
Megbízható, tapasztalt kivitelező
Természetközeli, családbarát környezet
Érdeklődj most és segítünk kiválasztani az Ön álomotthonát!