Ajánlói Link másolása
Szeged
kep Galéria
kep
kep
kep
kep
Feladva:2026-03-26 02:03
Profi hirdetés kiemelés előresorolással kiemelés 20+5 napig
Szeged
13 970 000 Ft
Szeged
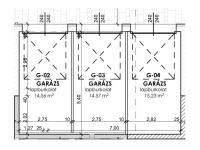
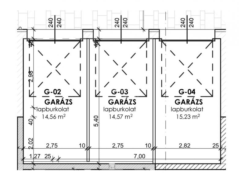
Udvari garázsok eladók Szeged belvárosában – Apáca utca Szeged belvárosában, az Apáca utcában, új építésű társasház udvarában kínálunk megvételre önálló garázsokat, amelyek kiváló lehetőséget jelentenek saját használatra vagy befektetési célra. A belvárosban a parkolás egyre nagyobb kihívás, ezért a garázsok iránt folyamatos és stabil kereslet tapasztalható. Főbb jellemzők - udvari elhelyezkedés - külön helyrajzi egységként kialakítva - aljzatbetonozott kivitel - vakolt falak - villanykiállás (kapcsoló, dugalj, lámpahely) - billenő garázskapu Átadás ütemezése - 2026 év vége: emelt szerkezetkész állapot - 2027 év eleje: kulcsrakész átadás Miért jó befektetés? - belvárosban korlátozott garázskínálat - folyamatos bérlői kereslet - alacsony fenntartási költség - gyorsan kiadható - hosszú távon értéknövekedés várható Kinek ajánljuk? - környéken lakóknak (parkolás megoldása) - lakásvásárlóknak (értéknövelő kiegészítés) - befektetőknek (könnyen bérbe adható) Lokáció - belvárosi elhelyezkedés - zárt, udvari környezet - biztonságos parkolás A belvárosi garázsok egyre ritkábbak, ezért stabil, alacsony kockázatú befektetésnek számítanak, amelyek könnyen hasznosíthatók bérbeadással. További információért keressen bizalommal!
Bruttó ár
13 970 000 Ft
Elérhetőségek
+36-... Megjelenítés
Weboldal link
0
Videó link
0
Cim
Magyarország
Csongrád megye
Szeged
Apáca utca
Hirdetés leirása
Hirdetés azonosító:41777