Ajánlói Link másolása
Szeged
kep Galéria
kep
kep
kep
kep
Feladva:2025-10-22 02:06
Profi hirdetés kiemelés előresorolással kiemelés 20+5 napig
Szeged
67 378 500 Ft
Szeged
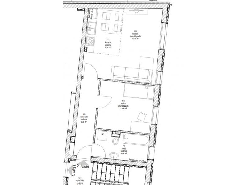
Eladásra kínálunk újépítésű lakásokat Szeged Rókus városrész belvárosához közeli csendes utcájában. Társasházban változatos alapterületű lakások köthetőek le 22 m2-től -78 m2-ig, amelyek 31,6 -108,7 M. forintos áron vásárolhatóak meg. A társasház első emeltén található 48 m2-es lakás elrendezése: • Amerikai konyhás nappali 23,49 m2 • Hálószoba 11,48 m2 • Fürdőszoba 6,6 m2 • Közlekedő 6,67 m2 Parkolás az utcán vagy a társasházban megvásárolható beálló vagy süllyesztett parkolóliftes beállási helyeken oldható meg. • Süllyesztett parkolólift ár 4,5 M. forint / db • Kocsibeálló ára 4,65 M. forint / db Társasház magas színvonalú kivitelezéssel és minőségi alapanyagok felhasználásával, valamint korszerű energiatakarékos műszaki tartalommal kerül megépítésre. A generálkivitelező cég évek óta minőségi kivitelezéssel épít ingatlanokat. A kulcsrakész átadás tervezett időpontja 2026 első félévében. Kedvezményes hiteligénylés, CSOK, BABAVÁRÓ támogatás esetén, kezdeményezheti a kapcsolatfelvételt díjmentesen bankfüggetlen hitelszakértő munkatársunkkal. Az ingatlan megtekintése előre egyeztetett időpontban lehetséges, akár hétvégén is. Amennyiben felkeltette az érdeklődését, további kérdéseivel kapcsolatban várom a jelentkezését.
Bruttó ár
67 378 500 Ft
Elérhetőségek
+36-... Megjelenítés
Weboldal link
0
Videó link
0
Cim
Magyarország
Csongrád megye
Szeged
Szeged
Hirdetés leirása
Hirdetés azonosító:38460