Ajánlói Link másolása
Szeged
kep Galéria
kep
kep
kep
kep
Feladva:2026-03-28 02:24
Profi hirdetés kiemelés előresorolással kiemelés 20+5 napig
Szeged
199 000 000 Ft
Szeged
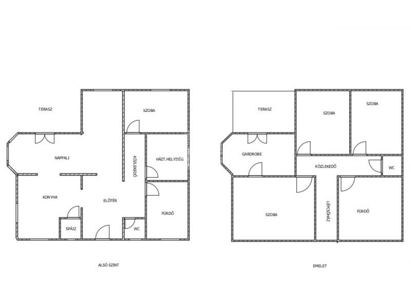
Szeged-Szentmihályon vált eladóvá ez az igényes, 248 m2-es, 2 szintes családi ház 1038 m2-es telken. Az ingatlan Szentmihály új részén, csendes utcában található. A földszinti rész 124m2, tetőtér 124m2, míg a pince 61m2. A ház 1992-ben épült, tégla szerkezetű, a külső homlokzat szigetelve van és korszerű műanyag nyílászárók lettek beépítve. Az épület mögött található a 36 m2-es, különálló dupla garázs áll. Szépen parkosított kertben, kiépített úszómedence található tisztító, vízforgató rendszerrel ellátva. Továbbá kis hangulatos halastó, pavilon, grillező, kemence helyezkedik el. A földszinten kapott helyet a 42 m2 nappali, kandallóval, ami nem csak látványos, de jelentős hőt is termel. Klasszikus konyha, kamra, fürdőszoba, külön WC, hálószoba, háztartási helyiség. Az emeleten három tágas hálószoba, fürdőszoba, külön WC. A ház fűtése a pincében elhelyezett gázkazánról történik padlófűtéssel, a hűtésről pedig klíma gondoskodik. Az ingatlan a gondos kezek nyomán nagyon szép állapotú, a kertben különleges nővények kaptak helyet, igazi nyugalom szigete az itt élők számára. Kiváló elhelyezkedése miatt több gyermekes családok ideális otthona lehet, de több generáció együttélésére is alkalmas. Az épülő BYD- autógyár 10 perc autóval, sorompó és közlekedési lámpa nélkül kiszámíthatóan elérhető. Az ingatlan tehermentes, 3 hónapon belül költözhető. NÉZZE MEG AJÁNLATUNKAT SZEMÉLYESEN IS!
Bruttó ár
199 000 000 Ft
Elérhetőségek
+36-... Megjelenítés
Weboldal link
0
Videó link
0
Cim
Magyarország
Csongrád megye
Szeged
Szeged-Szentmihály kedvelt részén
Hirdetés leirása
Hirdetés azonosító:36458