Ajánlói Link másolása
XXIII. kerület
kep Galéria
kep
kep
kep
kep
Feladva:2026-02-13 02:03
Profi hirdetés kiemelés előresorolással kiemelés 20+5 napig
Budapest XXIII. kerület
77 575 000 Ft
XXIII. kerület
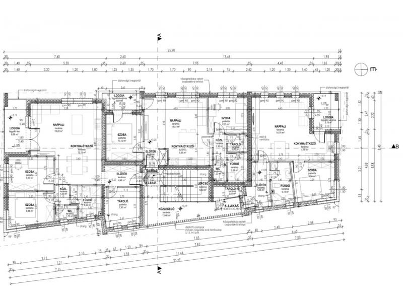
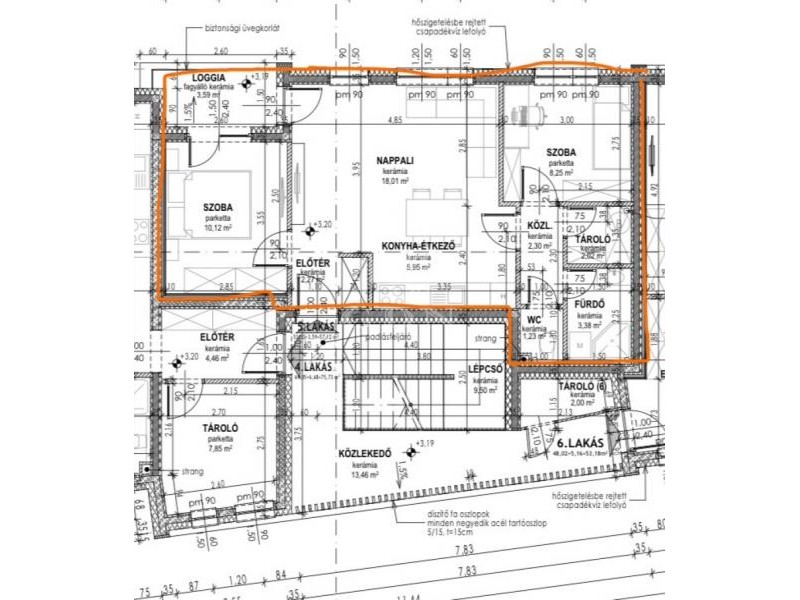
Eladó egy új építésű, összesen 6 lakásból álló társasház valamennyi lakása. Az ingatlan Soroksár új kertvárosi lakóparkjában, csendes, családbarát környezetben található, ahol a nyugodt életvitel és a jó városi elérhetőség harmonikusan találkozik. A város zajától távol, mégis kiváló infrastruktúrával rendelkezik: üzletek, szolgáltatások és tömegközlekedés könnyen elérhetők. A Soroksári kiserdő és a Duna közelsége különleges, természetközeli hangulatot biztosít, amely valódi otthonérzetet nyújt a leendő tulajdonosok számára. A meghirdetett lakás: 5. lakás: - Emelet, - 53,5 nm, - 2 szoba, - Amerikai konyhás nappali, - Fürdő-Wc, - Kamra, - Erkély 3,7nm. - 77.575.000 Ft 1. lakás: - Földszint, - 108.750.000 Ft 2. lakás: - Földszint, - 65.250.000 Ft 3. lakás: - Földszint, - 69.600.000 Ft 4. lakás: - Emelet, - 100.050.000 Ft 6. lakás: - Emelet, - 69.600.000 Ft MŰSZAKI TARTALOM Szerkezet és szigetelés • ProKoncept rendszerű falazat (25–35 cm vastagság) • 15 cm vastag grafitos hőszigetelés a homlokzaton • Lábazati és koszorú előtti hőszigetelés • Talajnedvesség elleni bitumenes szigetelés • Kiemelkedő hő- és hangszigetelési tulajdonságok Tető • Égetett agyag cserépfedés • Alacsony hajlásszögű tetőrészeken korcolt fémlemez fedés • Tartós, időjárásálló szerkezeti kialakítás Nyílászárók • Műanyag nyílászárók, 3 rétegű hőszigetelő üvegezéssel • Jó hő- és hangszigetelési értékek • Teraszajtók szintén 3 rétegű üvegezéssel Fűtés – gépészet • Levegő–víz hőszivattyús fűtési rendszer • Felületfűtés (padlófűtés) • Elektromos bojleres melegvíz-ellátás Energia & jövőállóság • Energiatakarékos, korszerű műszaki megoldások • Napelem későbbi kiépítésének lehetősége • Elektromos autó töltés előkészítése Burkolatok, belső kialakítás • Gipszkarton álmennyezet • Burkolatok magas minőségben, választható kivitelben Parkolás, környezet • Telken belüli parkolás • Minden lakáshoz saját autóbeálló • Földszinti lakásokhoz saját kis kert • Aszfaltozott utca, kiépített közművek Az elkészült lakások lakhatási engedéllyel kerülnek átadásra!!! Tervezett átadás: 2026. év vége! Ütemezés: 20% foglaló, a fennmaradó összeg megbeszélés alapján. Az ingatlan 3%-os Otthon Start hitellel is megvásárolható. Irodánk 30 éves szakmai tapasztalattal áll ügyfelei rendelkezésére! Bankfüggetlen hitelcentrummal, jogi hátérrel segítjük ingatlanvásárlását! Várom szíves megkeresését, hívjon bizalommal!
Bruttó ár
77 575 000 Ft
Elérhetőségek
+36-... Megjelenítés
Weboldal link
0
Videó link
0
Cim
Magyarország

Budapest XXIII. kerület
Kertvárosi körút
Hirdetés leirása
Hirdetés azonosító:40717