Ajánlói Link másolása
XXII. kerület
kep Galéria
kep
kep
kep
kep
Feladva:2025-10-16 02:07
Profi hirdetés kiemelés előresorolással kiemelés 20+5 napig
Budapest XXII. kerület
62 900 000 Ft
XXII. kerület
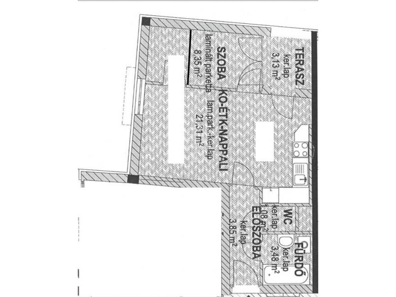
Kizárólag az irodánk kínálatában elérhető ajánlat! A lakás nem lakott, rövid határidővel szinte azonnal birtokba vehető! Ha csendes, kertvárosias környezetben, jó közlekedéssel keresi álmai lakását, akkor ez a lakás az Ön számára az ideális megoldás! XXII. kerületben, a Campona Bevásárlóközpont közvetlen vonzáskörzetében kínálunk megvételre egy 2009-ben épült társasház 2. emeletén lévő 38m2 + 3m2 panorámás erkéllyel rendelkező társasházi lakást. Helyiségei: -előszoba, fürdőszoba, WC+kézmosó, amerikai-konyha nappali, hálószoba, gardrób, erkély Tájolásának és 2. emeleti elhelyezkedésének köszönhetően napfényes és világos. Műszaki leírás /részlet/ - kiépített riasztórendszer - összes nyílászáró redőnnyel felszerelt - beépített, gépesített konyhabútor - a lakásban található teljes bútorzat és a műszaki berendezések a vételár részét képezik (TV, mosógép, mikrohullámsütő, hűtőszekrény, mosogatógép, sütő, kerámia főzőlap) - házközponti fűtés, egyedi méréssel - a közös belsőkert gondozott, az épületek belső részei rendszeresen karbantartottak. - zárt közös udvarra, valamint az épületekbe kaputelefonos beléptető rendszer kiépített. - az ingatlan akadálymentesített, lift üzemel. Per és tehermentes ingatlan KÖRNYEZET: Az ingatlan lokációja jó, csendes kertvárosias környezetben, jó tömegközlekedéssel. Autóval 3-10 percen belül elérhető a SAVOYA és a CAMPONA bevásárló központ, a budafoki városközpont, a piac és a XXII. kerületi szakrendelő. Közelben található óvoda, iskola, gimnázium, háziorvosi rendelő, cukrászda, virágüzlet, gyógyszertár, éttermek, üzletek. Autóbusszal 15-20 perc alatt elérhető Kelenföldi pályaudvar, a 4 METRO végállomása és az ETELE pláza. Amennyiben Önnek a vásárláshoz szüksége lenne hitelre, OTTHON START HITEL, CSOK PLUSZ, babaváró kölcsönre, lakástakarékra, stb., kezdeményezheti a kapcsolatfelvételt bankfüggetlen hitelügyintézőinkkel, teljesen DÍJMENTESEN. Az ingatlan megtekintése előre egyeztetett időpontban lehetséges, akár hétvégén is. Amennyiben a hirdetés felkeltette az érdeklődését, további kérdéseivel kapcsolatban várom jelentkezését!
Bruttó ár
62 900 000 Ft
Elérhetőségek
+36-... Megjelenítés
Weboldal link
0
Videó link
0
Cim
Magyarország

Budapest XXII. kerület
Panorámás, 2 szobás, erkélyes lakás
Hirdetés leirása
Hirdetés azonosító:38264