XXII. kerület
140 nm-es, kétszintes családi ház eladó Budafok legkedveltebb részén – csend, kert, lehetőség!
Budafok egyik legkedveltebb, csendes utcájában kínálunk megvételre egy két szintes, szigetelt családi házat, amely ideális lehet nagycsaládosoknak, két generáció számára, vagy akár befektetési célra is!
Két különálló lakás egy házban
A ház jelenleg két, önálló lakásként funkcionál: az alsó és felső szint is külön bejárattal rendelkezik, ugyanakkor a már meglévő belső lépcső segítségével könnyedén egybenyitható, így rugalmasan alakítható a tér az új tulajdonos igényei szerint.
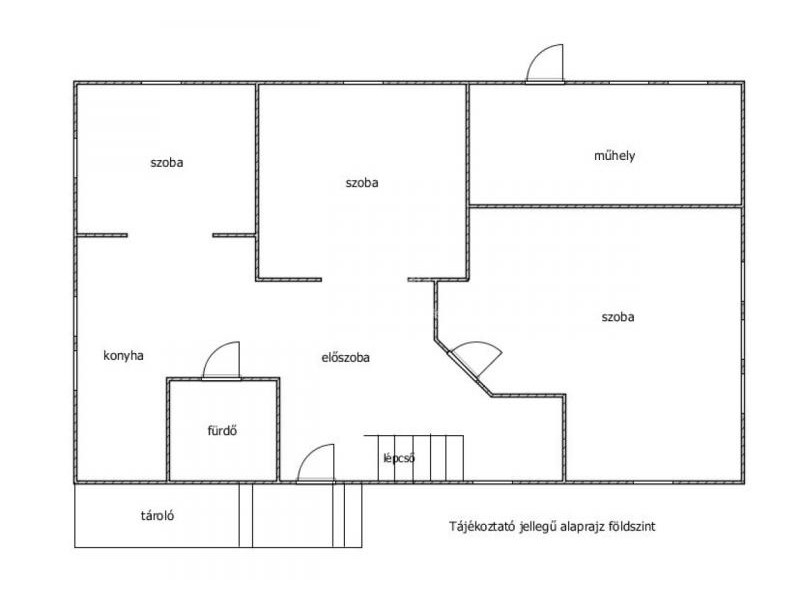
Alsó szint - mely jelenleg bérbe van adva:
2 külön nyíló szoba
Kis konyha
Zuhanyzós fürdőszoba
Dolgozó vagy hobby szoba
Felső szint:
Tágas, amerikai konyhás nappali
Hálószoba erkéllyel
Beépített terasz- étkezőnek vagy téli kertnek
Fürdőszoba
Külön WC
Tárolóhelyiség
Műszaki adatok:
Az ingatlan a ’80-as években épült, azóta szigetelt, jól karbantartott
Műanyag nyílászárók
Gázkazános fűtés, radiátorokkal
Villanybojler biztosítja a meleg vizet
A szobákban jó minőségű fa parketta, a többi helyiségben padlólap
Kert és extra lehetőségek:
Szépen gondozott kert termő gyümölcsfákkal
Kétkapus bejárat, akár 4 autó parkolására alkalmas beálló
A ház alatt egy kb. 200 m²-es földbe vájt pince található – akár borospincének, műhelynek, hobbitérnek is ideális!
Az ingatlan tehermentes és rövid határidővel birtokba vehető!
Ez az ingatlan tökéletes választás lehet azoknak, akik nyugodt, zöldövezeti környezetben keresnek rugalmasan alakítható, jó állapotú otthont – kiváló infrastruktúrával és közlekedéssel. Befektetési céllal vásárlók könnyedén bérbe tudják adni, a két szintet akár külön-külön is!
Ne maradjon le róla – hívjon bizalommal a megtekintésért!