Ajánlói Link másolása
XXI. kerület
kep Galéria
kep
kep
kep
kep
Feladva:2025-10-14 02:01
Profi hirdetés kiemelés előresorolással kiemelés 20+5 napig
Budapest XXI. kerület
299 000 000 Ft
XXI. kerület
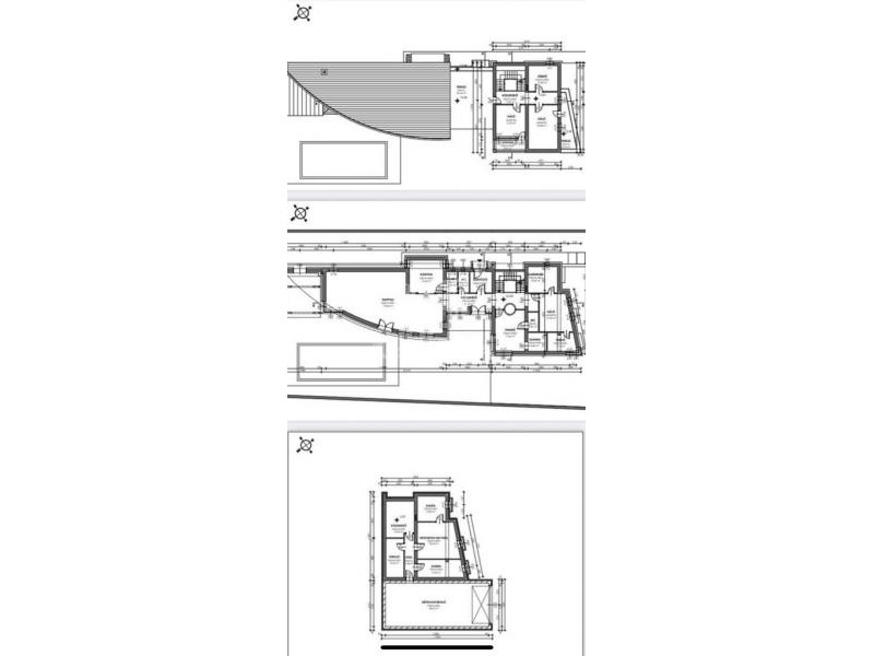
CSALÁDI HÁZ ELADÓ CSENDES, KERTVÁROSI KÖRNYEZETBEN – BUDAPEST XXI. KERÜLET, CSEPEL Eladó egy impozáns családi ház, amely a kerület központjához közel, mégis nyugodt, zöldövezeti környezetben helyezkedik el. A 1296 m²-es, gondozott kert öntözőrendszerrel, dísznövényekkel és hangulatos halastóval várja új tulajdonosát. A kertben fedett terasz és fűthető úszómedence biztosítja a tökéletes kikapcsolódást a melegebb hónapokban. Főbb adatok: Telek mérete: 1296 m² Bruttó alapterület: 426 m² Nettó alapterület: 349 m² Szintek: pince + földszint + emelet Ár: 299.000.000- Pince – 141 m² Garázs: 69 m², akár 4 autó kényelmesen elfér További 6–8 autó parkolása megoldott a garázs előtt Dolgozószoba saját WC-vel Háztartási helyiség, kazánház Tárolóhelyiségek beépített gardróbszekrényekkel Földszint – 183 m² Tágas nappali, étkező és konyha kamrával Vendég WC Hálószoba, fürdőszoba WC-vel, gardrób Rekreációs helyiség jakuzzival, szaunával és külön WC-vel A szint padlótól plafonig érő üvegfelületekkel lett kialakítva, hőszigetelő fóliával ellátva, amely véd a hidegtől, melegtől és a belátástól. Közvetlen kertkapcsolat a teraszhoz és medencéhez Emelet – 90 m² 3 külön nyíló hálószoba Közlekedő és tágas fürdőszoba A hálószobák és a nappali légkondicionáltak Egyéb jellemzők: Azonnal költözhető, tehermentes Kiváló közlekedés és infrastruktúra Csendes, családias környék, aktív közösségi élet Ez a ház ideális választás nagyobb családoknak vagy azoknak, akik prémium kényelmet keresnek kertvárosi környezetben, de nem szeretnének lemondani a város közelségéről. Ne hagyja ki ezt a különleges lehetőséget – tekintse meg személyesen ezt a gyönyörű, sokoldalú ingatlant!
Bruttó ár
299 000 000 Ft
Elérhetőségek
+36-... Megjelenítés
Weboldal link
0
Videó link
0
Cim
Magyarország

Budapest XXI. kerület
Mátyás utca
Hirdetés leirása
Hirdetés azonosító:38238