Ajánlói Link másolása
XX. kerület
kep Galéria
kep
kep
kep
kep
Feladva:2026-05-06 02:31
Profi hirdetés kiemelés előresorolással kiemelés 20+5 napig
Budapest XX. kerület
73 000 000 Ft
XX. kerület
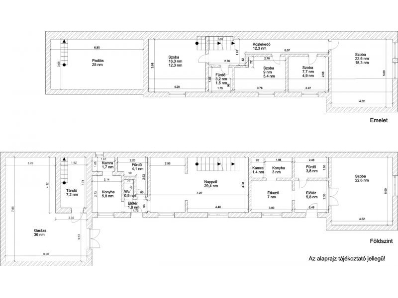
Befektetők, kivitelezők, figyelmébe ajánljuk! Pesterzsébet legjobb kertvárosi részén kínálunk megvételre egy nettó 209 nm alapterületű, kétszintes, téglából épült, önálló családi házat 291 nm-es telken. Az ingatlan teljes mértékben felújítandó! A ház földszinti része a 60-as években épült, a felsőszintet a 80-as évek végén építették rá, jelenleg 2 külön bejáratú lakásra van osztva. Beosztása: földszint: - előtér 5,8 nm, - étkező 7 nm, -konyha 3 nm, -kamra 1,4 nm, -fürdő 3,8 nm, -szoba 22,6 nm, -nappali 29,4 nm, -fürdő 4,1 nm, -előtér 1,5 nm, - kamra 1,7 nm, - konyha 5,8 nm, - tároló 7,2 nm, - garázs 36 nm, ----------------------- 129,4 nm. Emelet: -szoba 18,3 nm, -szoba 4,9 nm, -szoba 5,4 nm, -közlekedő 12,3 nm, -fürdő 1,5 nm, -szoba 12,3 nm, -helyiség 25 nm, ------------------------- 79,7 nm. Amivel segítjük az Ön ingatlanvásárlását: - ingyenes hitelügyintézés, - jogi háttér, - földhivatali ügyintézés, - energetikai tanúsítvány, - a vevő számára az ingatlanközvetítés ingyenes. Irodánk 30 éves szakmai tapasztalattal áll ügyfelei rendelkezésére! Várom szíves megkeresését!
Bruttó ár
73 000 000 Ft
Elérhetőségek
+36-... Megjelenítés
Weboldal link
0
Videó link
0
Cim
Magyarország

Budapest XX. kerület
Erzsébetfalva
Hirdetés leirása
Hirdetés azonosító:40754