Ajánlói Link másolása
XVIII. kerület
kep Galéria
kep
kep
kep
kep
Feladva:2026-03-14 02:06
Profi hirdetés kiemelés előresorolással kiemelés 20+5 napig
Budapest XVIII. kerület
119 800 000 Ft
XVIII. kerület
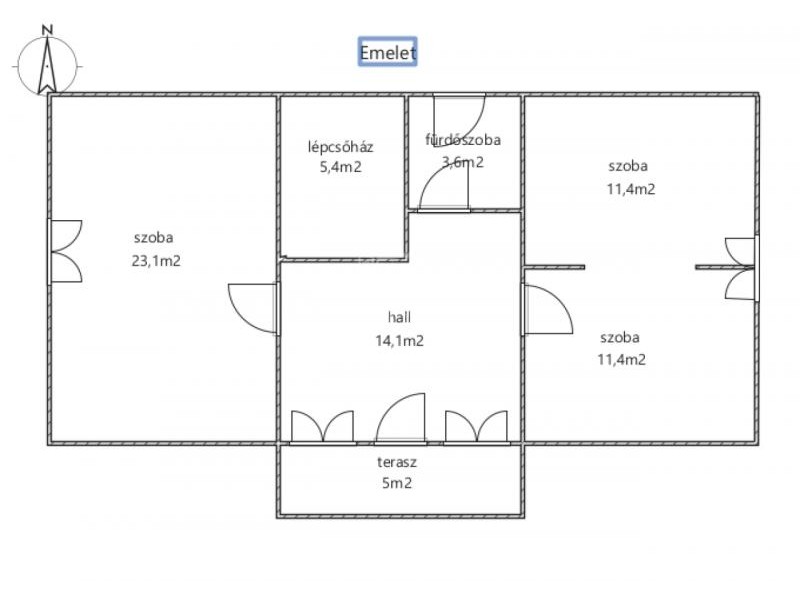
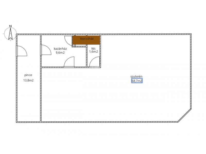
Eladó háromszintes önálló családi ház 18.kerületben. Budapest 18.kerület Szemeretelepen kínálunk megvételre egy nettó 230 nm-es, háromszintes,téglából épült, önálló családi házat 433 nm-es telken. A telken található még, egy különálló garázs. A nyílászárók háromrétegű üvegezésű a jobb hangszigetelés érdekében. A fűtést gáz cirkó biztosítja radiátoros hőleadással. Az ingatlan beosztása- földszint: - előszoba 7nm, - nappali 23,1nm, - konyha 7,5nm, - étkező 15,9nm, - kamra 2,3nm, - fürdőszoba 5,2nm, - WC 2,2nm, --------------------------- nettó: 63,2nm Emelet: - lépcsőház 5,4nm, - hall 14,1nm, - fürdőszoba+WC 3,6nm, - szoba 23,1nm, - szoba 11,4nm, - szoba 11,4nm, - terasz 5nm, ----------------------------- nettó:74nm Szuterén: - kazánház 9,6nm, - tároló 13,8nm, - WC,mosdó 1,6nm, - "dühöngő"szabadidőszoba 68,7nm, ------------------------------ nettó: 93,7nm Vonat, busz megálló a közelben. Játszótér sétatávolságra található. Amivel segítjük az Ön ingatlanvásárlását: - ingyenes hitelügyintézés, - jogi háttér, - földhivatali ügyintézés, - energetikai tanúsítvány, - a vevő számára az ingatlanközvetítés ingyenes. Irodánk 30 éves szakmai tapasztalattal áll ügyfelei rendelkezésére! Várom szíves megkeresését!
Bruttó ár
119 800 000 Ft
Elérhetőségek
+36-... Megjelenítés
Weboldal link
0
Videó link
0
Cim
Magyarország

Budapest XVIII. kerület
Szabács utca
Hirdetés leirása
Hirdetés azonosító:41394