Ajánlói Link másolása
XVIII. kerület
kep Galéria
kep
kep
kep
kep
Feladva:2026-04-14 02:28
Profi hirdetés kiemelés előresorolással kiemelés 20+5 napig
Budapest XVIII. kerület
145 000 000 Ft
XVIII. kerület
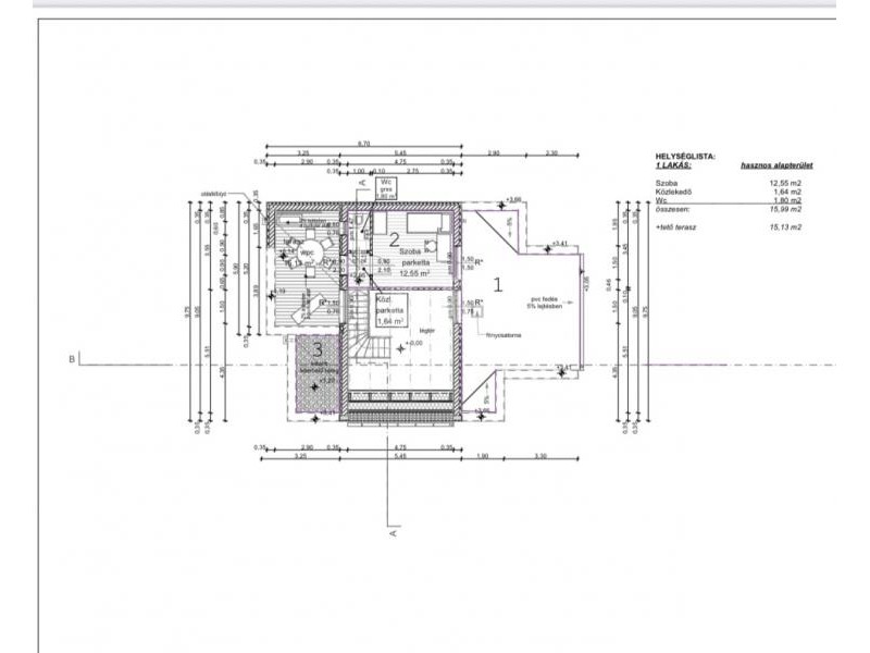
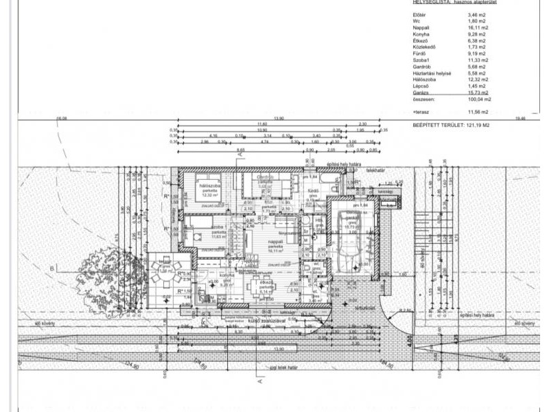
Almáskert Villa Park – Új építésű luxus családi házak a XVIII. kerület egyik legkedveltebb részén! Fedezze fel Budapest egyik legnyugodtabb, családbarát övezetét az Almáskertben, ahol három különálló, új építésű, modern családi ház várja leendő tulajdonosait! Mit kínálunk? ✅ Önálló, belső kétszintes házak (földszint + emelet) ✅ Nappali + 3 hálószoba ✅ 3 mellékhelyiség, kádas-zuhanyzós, dupla mosdós fürdőszoba ✅ Tágas gardrób, tetőterasz, saját parkosított kert ✅ Fűtött garázs elektromos, szekcionált kapuval Minőség kompromisszumok nélkül! Az otthonok a legkorszerűbb anyagokból készülnek: 25 cm-es extra hőszigetelő Ytong falazat 10 cm grafitos dryvit szigetelés 3 rétegű antracit nyílászárók, elektromos alumínium redőnyök 20 cm födémszigetelés, időtálló cserépfedés Energiahatékony és jövőálló otthon: Hőszivattyús fűtés és hűtés (H-tarifa) Fan-coil és padlófűtés minden helyiségben Előkészített napelemrendszer és elektromos autótöltő Rugalmas kialakítás: A burkolatok, szaniterek, beltéri ajtók egyedi igény szerint választhatók A fürdőszobákat bútorozva adjuk át Egyedi módosítások még kivitelezhetők az építkezés előrehaladásától függően Műszaki átadás: 2025 nyarán Ár: 145.000.000 Ft – kulcsrakész állapotban! Babaváró, CSOK és kamattámogatott hitel igénybe vehető Ügyvédi költséget az építtető/beruházó átvállalja Építkezés látogatható előre egyeztetett időpontban Ne maradjon le róla! Hívjon bizalommal a hét bármely napján, és ismerje meg álmai otthonát személyesen!
Bruttó ár
145 000 000 Ft
Elérhetőségek
+36-... Megjelenítés
Weboldal link
0
Videó link
0
Cim
Magyarország

Budapest XVIII. kerület
Alacskai út
Hirdetés leirása
Hirdetés azonosító:37202