XVI. kerület
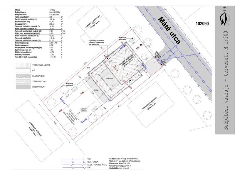
XVI. kerület – Sashalom, Máté utca 4.
Prémium kulcsrakész családi ház terasszal, pincével és hőszivattyús fűtéssel
A XVI. kerület egyik legkedveltebb, csendes mellékutcájában, Sashalmon kínálunk megvételre egy kiváló minőségben egy bővítés keretében gyakorlatilag teljesen újjáépült családi házat.
Az ingatlan 30 cm-es Porotherm téglából épült, 20 cm EPS homlokzati hőszigeteléssel, a födémben 30 cm ásványgyapot, a padlóban 10 cm lépésálló hőszigetelés biztosítja a kimagasló energiahatékonyságot.
A nyílászárók 3 rétegű üvegezéssel készültek, elektromos alumínium redőnnyel és szúnyoghálóval szerelve.
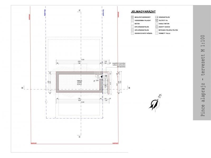
A ház 25 m²-es pincével, nettó 124 m² földszinti lakótérrel és nettó 56,54 m² emeleti szinttel rendelkezik.
A földszinten tágas, 65 m²-es amerikai konyhás nappali, valamint egy 19 m²-es hálószoba található saját fürdőszobával és gardróbbal, továbbá egy 37,74 m²-es fedett terasz és 6,22 m²-es belépő teszi teljessé a kényelmet.
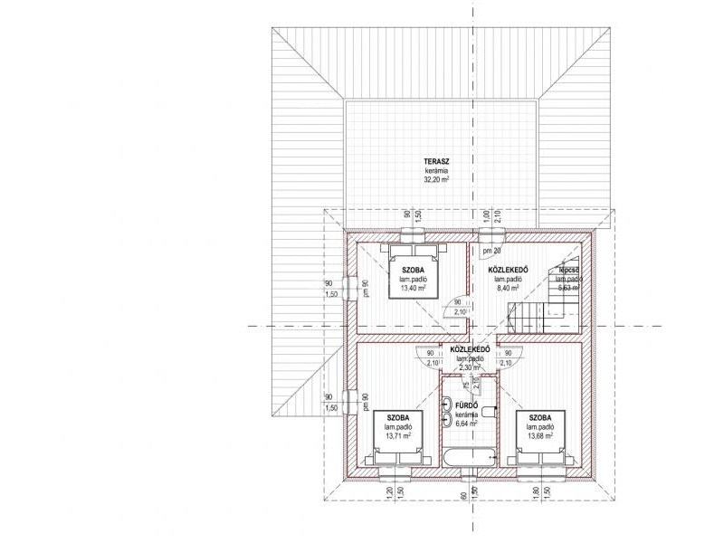
Az emeleten 3 hálószoba, fürdő, háztartási helyiség és egy 31,92 m²-es terasz kapott helyet.
A fűtésről és hűtésről split rendszerű hőszivattyú gondoskodik padlófűtéssel és minden helyiségben fan-coil hűtéssel.
A házban Geberit WC található mindhárom fürdőben, riasztórendszer mozgásérzékelőkkel, valamint kamerarendszer-előkészítés is beépítésre került.
A kapu elektromos meghajtású, az udvar térkövezett, a környezet rendezett.
A ház 2 hónapon belül egyedi igények szerint befejezhető, az alábbi, választható tartalommal:
– hidegburkolat: 10 000 Ft/m²
– melegburkolat: 6 000 Ft/m²
– beltéri ajtók: 80 000 Ft/db
– fürdőkád: 70 000 Ft
– csaptelepek: 25 000 Ft/db
– épített zuhany
– Legrand elektromos szerelvények
A ház elhelyezkedése kiváló: nyugodt, családi házas övezetben, mégis közel a tömegközlekedéshez, iskolákhoz és bevásárlási lehetőségekhez.
INGYENES hitel tanácsadás, CSOK Plusz ügyintézés!
BANKFÜGGETLEN hitelcentrumunk az összes elérhető bank és hitelintézet ajánlatát versenyezteti az Ön kedvéért, ráadásul DÍJMENTESEN.
- Egyedi, bankfiókban nem elérhető kamat- és díjkedvezmények
- Hitelképesség vizsgálat
- Idő, energia és pénz megtakarítás
- Teljes hivatali ügyintézés
Amennyiben hirdetésem felkeltette az érdeklődését vagy egyéb információra van szüksége hívjon bizalommal!