Ajánlói Link másolása
XVI. kerület
kep Galéria
kep
kep
kep
kep
Feladva:2025-10-28 02:49
Profi hirdetés kiemelés előresorolással kiemelés 20+5 napig
Budapest XVI. kerület
133 900 000 Ft
XVI. kerület
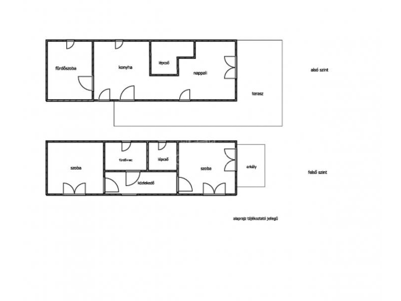
Eladásra kínálunk egy újszerű állapotú, 69 m²-es házrészt a XVI.kerület csendes kertvárosi részén. A három szobás ingatlannal egyben 180 m²-es saját kert is jár, ami kiváló lehetőséget nyújt pihenésre és szabadidős tevékenységekre. Plusz kocsi beállás is megoldott. A házhoz tartozik egy 3 m²-es erkély és egy tágas, 32 m²-es terasz, kertre néző kilátással, amely tökéletes helyszín a kikapcsolódáshoz. Az elektromos fűtési rendszer gondoskodik a kellemes hőmérsékletről a hideg téli hónapokban. Az ingatlan modern kialakítású, és kiválóan illeszkedik a környezet kertvárosi jellegéhez. Vegye fel a kapcsolatot velünk, és tekintse meg ezt az egyedi lehetőséget!
Bruttó ár
133 900 000 Ft
Elérhetőségek
+36-... Megjelenítés
Weboldal link
0
Videó link
0
Cim
Magyarország

Budapest XVI. kerület
Baross utca
Hirdetés leirása
Hirdetés azonosító:37898