XV. kerület
Azonnal indítható építési projekt Rákospalota–Palotaújfaluban
Eladásra kínálunk egy 464 m²-es építési telket Rákospalota–Palotaújfalu új parcellázású, rendezett részén, ahol kizárólag új építésű lakóingatlanok találhatók.
A telek teljes körű dokumentációval, jogerős építési engedéllyel és kész tervekkel rendelkezik.
A tervek szerint egy modern ikerház épül, melynek kivitelezése azonnal megkezdhető. A telek már az ikerház tervei alapján megosztásra került, így a kialakítás maximálisan illeszkedik a jóváhagyott épülethez.
Fontos: a telken kizárólag a meglévő tervdokumentációban szereplő épület valósítható meg. A belső terek ugyanakkor szabadon alakíthatók (falak, burkolatok, színek), engedélyköteles módosításra nincs lehetőség.
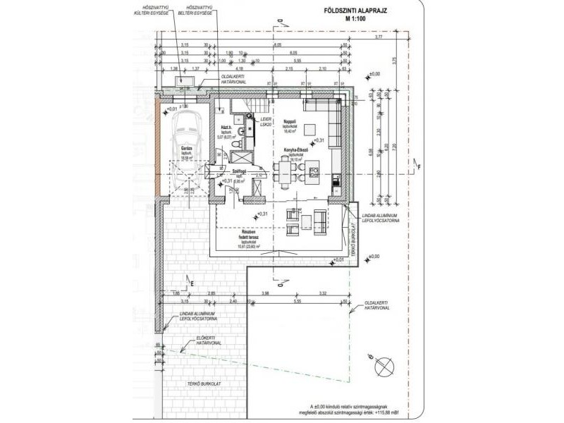
A tervezett lakrész 141,77 m² összterületű:
– földszinten amerikai konyhás nappali és háztartási helyiség
– emeleten három szoba, fürdőszoba és lépcsőház
– az ingatlanhoz különálló garázs is tartozik
Az ikerház két fele szerkezetileg összekapcsolódik, ezért az építkezést egy időben szükséges megkezdeni. Olyan vevőt keresünk, aki a szerződéskötést követően rövid időn belül elindítaná a kivitelezést.
A tervezés során kiemelt szempont volt az intimitás és a nyugalom, így a lakások minimális áthallással, jól szeparált módon kerülnek kialakításra.
A telek csendes, zöld környezetben helyezkedik el, mégis kiváló közlekedéssel: gyors elérés a belváros felé, valamint könnyű kapcsolat az M3-as és M0-s autópályákhoz, autóval és tömegközlekedéssel egyaránt.
A telek kizárólag a meglévő tervekkel és engedélyekkel együtt eladó – ideális választás befektetőknek vagy építkezni vágyóknak, akik egy előre előkészített, azonnal indítható projektet keresnek.
Ha felkeltette érdeklődését, keressen bizalommal!
GB