Profi hirdetés kiemelés előresorolással kiemelés 20+5 napig
Budapest XIX. kerület
45 000 000 Ft
XIX. kerület
✨ BEFEKTETŐK, FIGYELEM! ✨
KIVÁLÓ LEHETŐSÉG BUDAPEST 19. KERÜLETÉBEN!
Eladó egy teljes mértékben felújítandó, saroktelken elhelyezkedő ikerház első fele, frekventált, mégis kertvárosias környezetben!
A két házrész külön utcáról nyílik, teljesen elkülönülve egymástól.
Az ingatlan és a telek ügyvédi megosztása folyamatban van.
A jelenlegi tulajdonos vállalja:
a szükséges bontási munkákat,
a tető rendbetételét, új tetőfedést
az új kerítés kialakítását,
valamint az elektromos kazán már megvásárlásra került, így a fűtés kialakítása is adott.
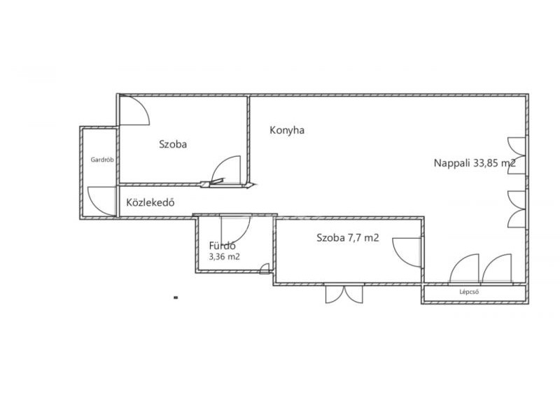
A képek között található alaprajz a tervezett átalakítást mutatja, mely jelenleg még szabadon alakítható — így saját igényekre, vagy kivitelezők számára is kiváló lehetőség!
Miért ideális választás?
✓ Kitűnő lokáció
✓ Buszmegálló pár méterre
✓ Iskola és bolt gyalogos távolságra
✓ Bevásárlóközpont 1000 méteren belül
✓ Kertvárosias környezet a nagyváros minden előnyével
Itt minden átlátható: a felújítás bárki által elvégezhető vagy nyomon követhető!
Elsősorban készpénzes vásárlók jelentkezését várjuk!
Megtekintés a hét bármely napján lehetséges!
Ha jó áron alakítanál ki saját ízlésed szerint egy ingatlant, vagy kivitelezőként keresed a következő projekted — ez a lehetőség neked szól! Érdeklődj most!
A hirdető nem rendelkezik saját hirdetési aloldallal.